"Классический дуэт"
Ходько Юлия Витальевна и Мельникова Катерина Александровна!

Дизайн-проект 4-х комнатной квартиры для молодой пары в классическом стиле. Главная задача — создать комфортные и функциональные помещение.
Предпочтение было: светлый интерьер, «не вычернутое» золото, легкость и пышность в декоре.
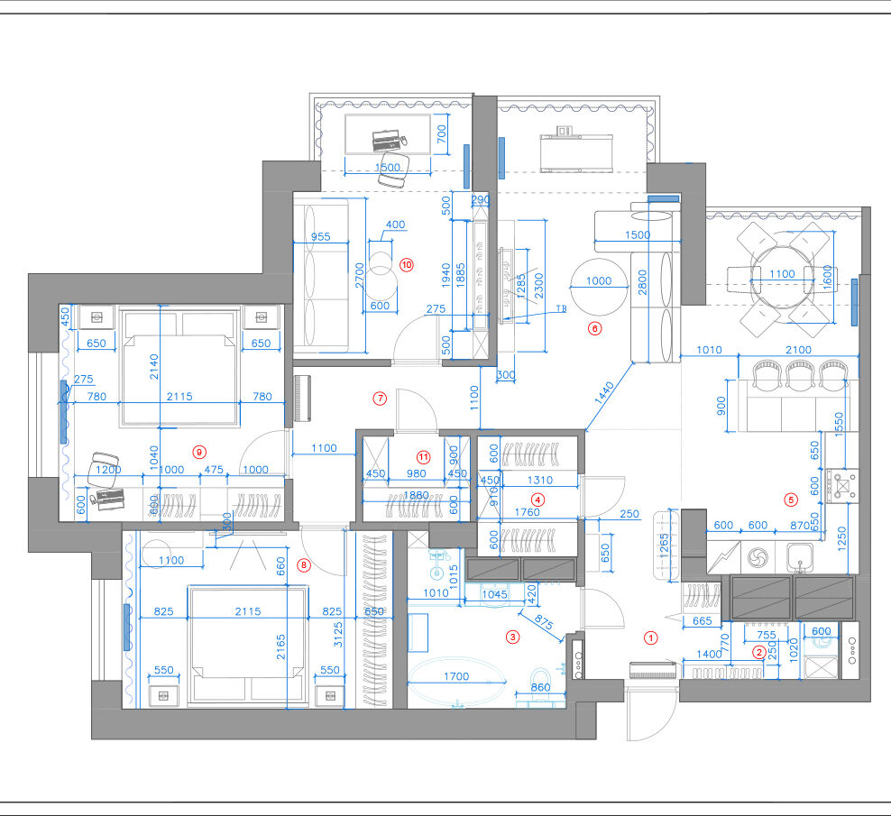
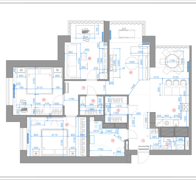
Со входа открывается пространство гостиной зоны. Гостиная — это важная часть квартиры, она должна быть функциональной, яркой и эстетичной. Главная композиция гостиной, изюминка интерьера — каминная группа с акцентной плиткой текстуры камня.
Интересный элемент – портал с пилястрами, он привлекает к себе внимание и разделяет две зоны. Белая П-образная кухня с полубарной стойкой выделена классическим порталом, золотыми ручками и вставками в мозайке на фартуке. У французского окна разместилась столовая зона. Все радиаторы заменены на дизайнерские модели белого цвета.
В квартире запроектировано 2 спальни(хозяйская и гостевая), рабочий кабинет с диваном и каминной зоной. Необходимо было выделить гардеробные комнаты: мужской, межсезонной, технической с постирочным шкафом, женский гардеробный шкаф. Санузел с душевой кабиной в нише, отдельностоящая ванна с напольным смесителем, акцент с/у -широкоформатная плитка 1200*2400мм и необычное решение- навеска хрустальной люстры.
Смелое и нестандартное применение лепного декора, хрустальные люстры и множество зеркал с фацетами дают неповторимость и пышность интерьеру. Все композиции молдингов симметричны и имею одинаковые расстояния (пример: зона за ТВ и зона за обеденным столом, зеркальные панно в коридре, санузел и т.д.) и выстроены относительно ниш в потолке – визуально проводят прямую линию и симметрию.
Высоты межкомнатных дверей с наличником выдержаны в одну линию с молдингами, которые находятся на одинаковом расстояние от плинтуса, карниза, и боковых молдингов.
Применяемые материалы: мраморная плитка, декоративная штукатурка, покраска, зеркала выбеленные и бронза.
Каноны классического интерьера соблюдены в проекте. Каждое помещение, как история, дополняет другое.

"Классический дуэт"
Ходько Юлия Витальевна и Мельникова Катерина Александровна

Дизайн-проект 4-х комнатной квартиры для молодой пары в классическом стиле. Главная задача — создать комфортные и функциональные помещение.
Предпочтение было: светлый интерьер, «не вычернутое» золото, легкость и пышность в декоре.
Со входа открывается пространство гостиной зоны. Гостиная — это важная часть квартиры, она должна быть функциональной, яркой и эстетичной. Главная композиция гостиной, изюминка интерьера — каминная группа с акцентной плиткой текстуры камня.
Интересный элемент – портал с пилястрами, он привлекает к себе внимание и разделяет две зоны. Белая П-образная кухня с полубарной стойкой выделена классическим порталом, золотыми ручками и вставками в мозайке на фартуке. У французского окна разместилась столовая зона. Все радиаторы заменены на дизайнерские модели белого цвета.
В квартире запроектировано 2 спальни(хозяйская и гостевая), рабочий кабинет с диваном и каминной зоной. Необходимо было выделить гардеробные комнаты: мужской, межсезонной, технической с постирочным шкафом, женский гардеробный шкаф. Санузел с душевой кабиной в нише, отдельностоящая ванна с напольным смесителем, акцент с/у -широкоформатная плитка 1200*2400мм и необычное решение- навеска хрустальной люстры.
Смелое и нестандартное применение лепного декора, хрустальные люстры и множество зеркал с фацетами дают неповторимость и пышность интерьеру. Все композиции молдингов симметричны и имею одинаковые расстояния (пример: зона за ТВ и зона за обеденным столом, зеркальные панно в коридре, санузел и т.д.) и выстроены относительно ниш в потолке – визуально проводят прямую линию и симметрию.
Высоты межкомнатных дверей с наличником выдержаны в одну линию с молдингами, которые находятся на одинаковом расстояние от плинтуса, карниза, и боковых молдингов.
Применяемые материалы: мраморная плитка, декоративная штукатурка, покраска, зеркала выбеленные и бронза.
Каноны классического интерьера соблюдены в проекте. Каждое помещение, как история, дополняет другое.

Церемония награждения — 14 мая 2026 года!