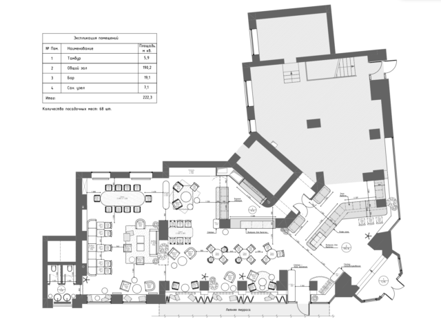
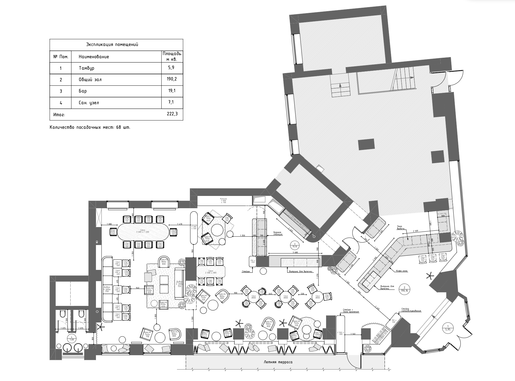
Арт-кафе "Buro"
Finoarte design bureau (Беляев Игорь Леонидович)!

Владелец нескольких заведений в Иваново, стремясь создать уютное пространство для интеллигентной и креативной публики, обратился к дизайн-бюро finoarte с целью разработки концепции нового арт-кафе. Задача была не из легких: создать атмосферное место, которое бы привлекало молодых людей 20-40 лет, позволяя им как уединиться за работой, так и насладиться общением в компании друзей за бокалом вина и изысканными блюдами.

Кафе задумывалось не просто как место для трапезы, а как пространство для самовыражения, творческих встреч, проведения мастер-классов и кинопоказов.
Дизайнеры, опираясь на пожелания заказчика, обратились к прошлому – к эстетике советской эпохи. Вдохновением послужили интерьеры советских времен — мебель, кресла, постеры с советскими иллюстрациями, которые друг с другом взаимодействуют. Деревянные элементы в мебели, стенах и полах придают пространству теплоту и уют. Цветовая гамма спокойная, с яркими акцентами в некоторых зонах. Классический советский ковер превращен в арт-объект, украшающий не только пол, но и люстры, создавая яркий, необычный акцент.

В оформлении кафе используется приглушенный свет, многоуровневая подсветка, что придает интерьеру особый шарм. Предлагается использование различных советских атрибутов, некое их переосмысление и новое прочтение. Например, известный паттерн упаковки молока превращен в декоративное панно.
Основной сложностью было оставаться в выделенном бюджете, при этом интерьер получился достаточно продуманный и насыщенный различными деталями. Старое здание, в котором располагалось кафе, потребовало от дизайнеров решения многих технических задач. Но и это стало возможностью для творчества.

Широкие стены были использованы как возможность сделать подоконники.
Используя бюджет оптимально, дизайнеры создали кафе, которое с уверенностью можно назвать «местом встречи для интеллектуалов».

Арт-кафе "Buro"
Finoarte design bureau (Беляев Игорь Леонидович)

Владелец нескольких заведений в Иваново, стремясь создать уютное пространство для интеллигентной и креативной публики, обратился к дизайн-бюро finoarte с целью разработки концепции нового арт-кафе. Задача была не из легких: создать атмосферное место, которое бы привлекало молодых людей 20-40 лет, позволяя им как уединиться за работой, так и насладиться общением в компании друзей за бокалом вина и изысканными блюдами.

Кафе задумывалось не просто как место для трапезы, а как пространство для самовыражения, творческих встреч, проведения мастер-классов и кинопоказов.
Дизайнеры, опираясь на пожелания заказчика, обратились к прошлому – к эстетике советской эпохи. Вдохновением послужили интерьеры советских времен — мебель, кресла, постеры с советскими иллюстрациями, которые друг с другом взаимодействуют. Деревянные элементы в мебели, стенах и полах придают пространству теплоту и уют. Цветовая гамма спокойная, с яркими акцентами в некоторых зонах. Классический советский ковер превращен в арт-объект, украшающий не только пол, но и люстры, создавая яркий, необычный акцент.

В оформлении кафе используется приглушенный свет, многоуровневая подсветка, что придает интерьеру особый шарм. Предлагается использование различных советских атрибутов, некое их переосмысление и новое прочтение. Например, известный паттерн упаковки молока превращен в декоративное панно.
Основной сложностью было оставаться в выделенном бюджете, при этом интерьер получился достаточно продуманный и насыщенный различными деталями. Старое здание, в котором располагалось кафе, потребовало от дизайнеров решения многих технических задач. Но и это стало возможностью для творчества.

Широкие стены были использованы как возможность сделать подоконники.
Используя бюджет оптимально, дизайнеры создали кафе, которое с уверенностью можно назвать «местом встречи для интеллектуалов».

Церемония награждения — 14 мая 2026 года!