Шоурум одежды "Krikate"
Хотим Екатерина Викторовна!

Шоурум дизайнерской одежды для белорусского бренда KRIKATE.

Перед началом проекта дизайнер хорошо изучил бренд, его айдентику, как они себя позиционируют, наблюдала за основателем бренда.

KRIKATE — это премиальное качество тканей, ярко читаемые детали, идеальный крой, который подчеркивает достоинства каждой фигуры. Команда компании, уверена, что одежда должна, прежде всего, дарить «искры счастья».

Все это проанализировав дизайнер поняла, что интерьер должен быть яркий, свежий, воздушный обязательно с концепцией и изюминкой. На ее взгляд атмосфера фильма отель «Гранд Будапешт» хорошо отражает бренд.Именно этот фильм положил основу интерьера будущего шоурума.

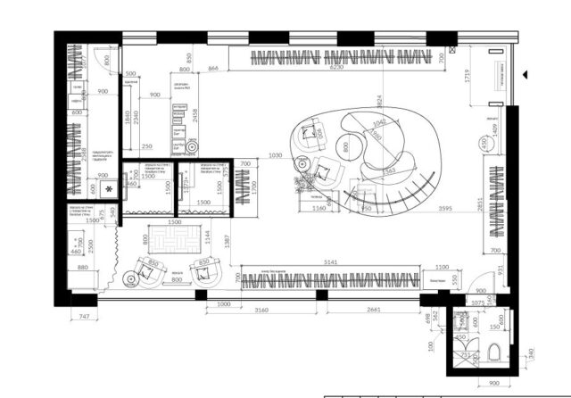
Так появилась необычная кассовая зона в виде отельного ресепшена, где клиентами будут выдавать послания или посылочки. Рядом дверь служебного лифта Service Elevator, откуда будут приносить роскошные наряды. Так же в проекте есть перекатные отельные тележки, но в современным исполнение! Можно ходить по шоуруму и сразу вешать вещи для примерки на эту тележку и закатывать в примерочную!

Уникальность этого проекта в том, что он полностью построен на противоречивых приемах, и именно эти приемы создают необычную атмосферу.

К примеру, зона за ресепшеном более классическая и нарядная, а перед ним супер лаконичная и современная стойка самого ресепшена. Противоречие в золотом релинге (держатель вещей) который перетекает в зеркальные тумбы с серебряным оттенком. У нас в центре располагается супер современная зона, а над ней классический люстра!Данную люстру чертил дизайнер и по ее эскизам сделали индивидуальный заказ. На люстре примерно пол километра цепи! Это было очень сложное изделие в изготовлении, говорит дизайнер, но получилось эффектно. За современный центральной композицией, есть женский классический будуарчик.

Проект очень сложный в реализации. Так как здесь нет ни одного изделия и предмета, которое купили в магазине и привезли. Совершенно все здесь уникальное, и изготовлено по эскизам дизайнера.

Шоурум одежды "Krikate"
Хотим Екатерина Викторовна

Шоурум дизайнерской одежды для белорусского бренда KRIKATE.

Перед началом проекта дизайнер хорошо изучил бренд, его айдентику, как они себя позиционируют, наблюдала за основателем бренда.

KRIKATE — это премиальное качество тканей, ярко читаемые детали, идеальный крой, который подчеркивает достоинства каждой фигуры. Команда компании, уверена, что одежда должна, прежде всего, дарить «искры счастья».

Все это проанализировав дизайнер поняла, что интерьер должен быть яркий, свежий, воздушный обязательно с концепцией и изюминкой. На ее взгляд атмосфера фильма отель «Гранд Будапешт» хорошо отражает бренд.Именно этот фильм положил основу интерьера будущего шоурума.

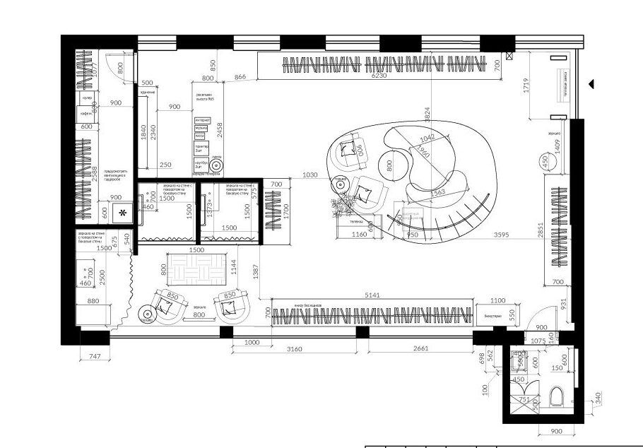
Так появилась необычная кассовая зона в виде отельного ресепшена, где клиентами будут выдавать послания или посылочки. Рядом дверь служебного лифта Service Elevator, откуда будут приносить роскошные наряды. Так же в проекте есть перекатные отельные тележки, но в современным исполнение! Можно ходить по шоуруму и сразу вешать вещи для примерки на эту тележку и закатывать в примерочную!

Уникальность этого проекта в том, что он полностью построен на противоречивых приемах, и именно эти приемы создают необычную атмосферу.

К примеру, зона за ресепшеном более классическая и нарядная, а перед ним супер лаконичная и современная стойка самого ресепшена. Противоречие в золотом релинге (держатель вещей) который перетекает в зеркальные тумбы с серебряным оттенком. У нас в центре располагается супер современная зона, а над ней классический люстра!Данную люстру чертил дизайнер и по ее эскизам сделали индивидуальный заказ. На люстре примерно пол километра цепи! Это было очень сложное изделие в изготовлении, говорит дизайнер, но получилось эффектно. За современный центральной композицией, есть женский классический будуарчик.

Проект очень сложный в реализации. Так как здесь нет ни одного изделия и предмета, которое купили в магазине и привезли. Совершенно все здесь уникальное, и изготовлено по эскизам дизайнера.

Церемония награждения — 14 мая 2026 года!