Салон красоты "YOU ART"
Довгялло Анна Георгиевна/ ESTE DESIGN INTERIORS!

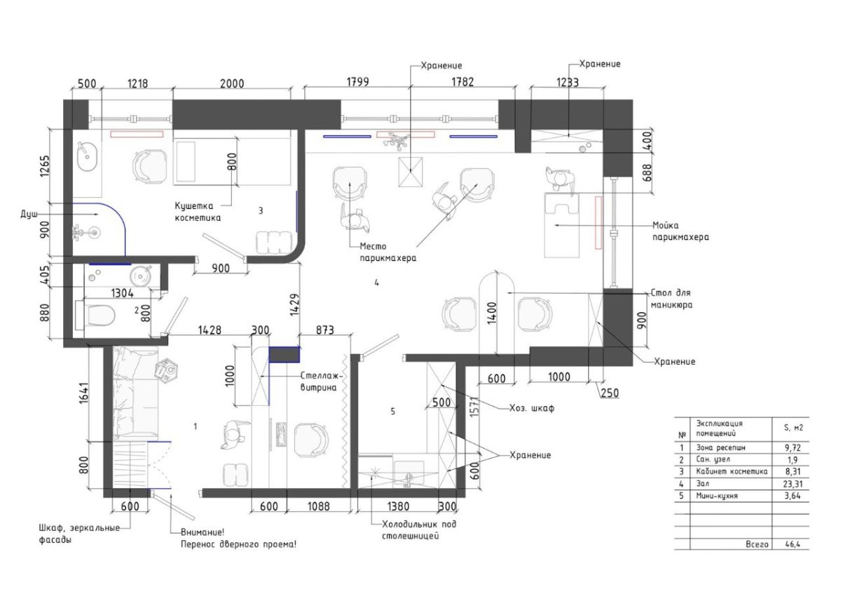
Основная задача и одновременно сложность в работе над проектом заключалась в том, чтобы на чуть менее чем 48 м2 разместить все необходимые функциональные зоны и в то же время не перегрузить интерьер.

В результате работы над планировкой, нам удалось выделить несколько зон общего зала, а также разместить изолированные кабинет для работы косметолога, помещение персонала с мини-кухней и санузел. Получилось также разместить и удачно замаскировать множество систем хранения, которые нужны были в большом количестве.

На входе клиентов встречает нарядная стойка ресепшн с зоной ожидания. Конструкция отделана эффектным керамогранитом под мрамор с бордовыми прожилками, и эта зона с металлическим стеллажами выступает главным акцентом помещения. Композицию ресепшн удачно оттеняет радиусная стена, отделанная натуральным шпоном дуба. Она выступает благородным фоном для других элементов и задает настроение мягкости и текучести, которое прослеживается во всем интерьере.

В глубине зала расположились зоны парикмахерской, маникюра и педикюра. В качестве одного из элементов зонирования выступает деревянная ширма со вставкой из льна, которая перекликается с текстилем японских штор.

Для хозяйки салона важно было создать атмосферу уюта, комфорта, которая располагает гостей к расслаблению и помогает погрузиться в мир релакса и красоты, поэтому при проработке визуальной концепции мы обратились к стилистике джапанди и эко-стиля.

Минималистичная основа позволила привнести в интерьер атмосферу спокойствия и эстетику естественной гармонии, создать свободное пространство, наполненное светом, в цветовой гамме из натуральных оттенков.

Мы предусмотрели различные сценарии управления светом, включая общее и локальное освещение. А также добавили разнообразные светодиодные подсветки, которые подчеркивают акцентные элементы дизайна и помогают создать атмосферу уюта и ощущение домашнего тепла.

Салон красоты "YOU ART"
Довгялло Анна Георгиевна/ ESTE DESIGN INTERIORS

Основная задача и одновременно сложность в работе над проектом заключалась в том, чтобы на чуть менее чем 48 м2 разместить все необходимые функциональные зоны и в то же время не перегрузить интерьер.

В результате работы над планировкой, нам удалось выделить несколько зон общего зала, а также разместить изолированные кабинет для работы косметолога, помещение персонала с мини-кухней и санузел. Получилось также разместить и удачно замаскировать множество систем хранения, которые нужны были в большом количестве.

На входе клиентов встречает нарядная стойка ресепшн с зоной ожидания. Конструкция отделана эффектным керамогранитом под мрамор с бордовыми прожилками, и эта зона с металлическим стеллажами выступает главным акцентом помещения. Композицию ресепшн удачно оттеняет радиусная стена, отделанная натуральным шпоном дуба. Она выступает благородным фоном для других элементов и задает настроение мягкости и текучести, которое прослеживается во всем интерьере.

В глубине зала расположились зоны парикмахерской, маникюра и педикюра. В качестве одного из элементов зонирования выступает деревянная ширма со вставкой из льна, которая перекликается с текстилем японских штор.

Для хозяйки салона важно было создать атмосферу уюта, комфорта, которая располагает гостей к расслаблению и помогает погрузиться в мир релакса и красоты, поэтому при проработке визуальной концепции мы обратились к стилистике джапанди и эко-стиля.

Минималистичная основа позволила привнести в интерьер атмосферу спокойствия и эстетику естественной гармонии, создать свободное пространство, наполненное светом, в цветовой гамме из натуральных оттенков.

Мы предусмотрели различные сценарии управления светом, включая общее и локальное освещение. А также добавили разнообразные светодиодные подсветки, которые подчеркивают акцентные элементы дизайна и помогают создать атмосферу уюта и ощущение домашнего тепла.

Церемония награждения — 14 мая 2026 года!