"Ombre verte"
Кочедамова Маргарита Олеговна!

Дуэт мрамора и дерева-основная идея. При создании интерьера я стремилась сделать акцент на натуральные материалы и функциональные решения. Интерьер, который будет отражать образ жизни хозяев, учитывая актуальные тенденции в дизайне.

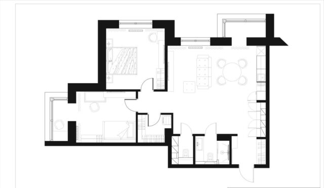
При входе в квартиру мы сразу попадаем в прихожую, через которую просматривается фокус зона-обеденная зона в гостиной. Кухня, витрина и шкаф в прихожей образуют единый ансамбль, который визуально облегчает пространство и делает его больше.

На контрасте с темным полом, фоном всего интерьера выступают светлые оттенки, являясь идеальной базой для декора глубоких темных тонов. Планировочное решение включает большое общее пространство кухни, обеденной зоны и гостиной, а также спальни, детской, гардеробной и санузла.

Интересным приемом является – порящий потолок вдоль холла. Подсветка направлена в верх, мягко растекаясь вдоль стены. Этот эффект позволяет наслаждаться вечерними и ночными передвижениями по квартире без ярких вспышек света.

Для меня было важно соблюсти гармонию в оттенках и деталях, не перегружая интерьер. Поэтому в проекте я использую сочетание мрамора с активным и не очень активным рисунком, цвет мебели подобран в цвет паркета или стен. Цвет текстиля так же подобран под отделочные материалы, и лишь хвойно-зеленый цвет существует по своим правилам. Все идеи в сочетании с удачным планировочным решениями нюансно подчеркивают характер всего пространства.

"Ombre verte"
Кочедамова Маргарита Олеговна

Дуэт мрамора и дерева-основная идея. При создании интерьера я стремилась сделать акцент на натуральные материалы и функциональные решения. Интерьер, который будет отражать образ жизни хозяев, учитывая актуальные тенденции в дизайне.

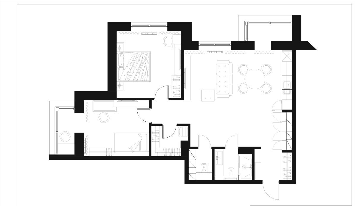
При входе в квартиру мы сразу попадаем в прихожую, через которую просматривается фокус зона-обеденная зона в гостиной. Кухня, витрина и шкаф в прихожей образуют единый ансамбль, который визуально облегчает пространство и делает его больше.

На контрасте с темным полом, фоном всего интерьера выступают светлые оттенки, являясь идеальной базой для декора глубоких темных тонов. Планировочное решение включает большое общее пространство кухни, обеденной зоны и гостиной, а также спальни, детской, гардеробной и санузла.

Интересным приемом является – порящий потолок вдоль холла. Подсветка направлена в верх, мягко растекаясь вдоль стены. Этот эффект позволяет наслаждаться вечерними и ночными передвижениями по квартире без ярких вспышек света.

Для меня было важно соблюсти гармонию в оттенках и деталях, не перегружая интерьер. Поэтому в проекте я использую сочетание мрамора с активным и не очень активным рисунком, цвет мебели подобран в цвет паркета или стен. Цвет текстиля так же подобран под отделочные материалы, и лишь хвойно-зеленый цвет существует по своим правилам. Все идеи в сочетании с удачным планировочным решениями нюансно подчеркивают характер всего пространства.

Церемония награждения — 14 мая 2026 года!