Гостевой дом в загородном парке «Ближняя Дача»
Мария Ксенофонтова!

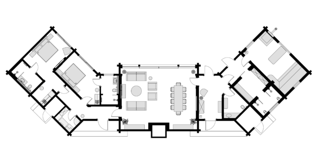
Гостевой дом в стиле шале построен из клееного бруса фабрики Хольц Хаус. Элегантная форма строения смягчила брутальность материала.
Шале родом с альпийских предгорий, но и на российских просторах этот тип строений смотрится органично. Они сочетают золотую середину между функцией и эстетикой, выглядят добротно и очень атмосферно. Во внутреннем дворике находится открытая беседка на 12 гостей.

У него закрытый центральный фасад. Внутри, наоборот, сделан акцент на открытость и прозрачность. Ведь идея впустить природу в дом – одна из стилевых особенностей шале. Все помещения оборудованы раздвижными окнами в пол. Спроектированные витражи hs-portal при больших пролетах гостиной позволяют открыть витраж и продолжить помещение, соединив его с внутренним садом.

Строение одноэтажное, с одной стороны находятся две спальни, и две ванных комнаты, с другой – санузел и баня с уникальной парной: витражные двери увеличили и без того большую парную. Объединяет оба крыла в одно живое пространство просторная и воздушная (высота потолков 5 метров) гостиная. Помещение условно делится на обеденную и гостевую зону, где может собраться большая компания.

Шале – это природные цвета и натуральные материалы. Поэтому брус в отделке стен сохранили. Тема дерева (оттенки от светло- до темно-орехового), бесспорно, определяет весь характер оформления.

Пол выложен природным камнем – шлифованным плитняком, им же вымощена придомовая территория. Плитняк – материал для улицы, здесь его применили специально, чтобы подчеркнуть отсутствие границ между внутренним и внешним пространством. Также камнем отделан и банный блок.

В целом, интерьер создавали вне времени, чтобы он оставался актуальным надолго. Этим запросом был обусловлен выбор мебели от фабрики Eichholtz. В дизайне продуктов сочетается классический стиль в современной вариации, этнические ноты и минимализм. Мебель добротная, вписывается в самые разные стили. Интерьерный текстиль Espocada.

Гостевой дом в загородном парке «Ближняя Дача»
Мария Ксенофонтова

Гостевой дом в стиле шале построен из клееного бруса фабрики Хольц Хаус. Элегантная форма строения смягчила брутальность материала.
Шале родом с альпийских предгорий, но и на российских просторах этот тип строений смотрится органично. Они сочетают золотую середину между функцией и эстетикой, выглядят добротно и очень атмосферно. Во внутреннем дворике находится открытая беседка на 12 гостей.

У него закрытый центральный фасад. Внутри, наоборот, сделан акцент на открытость и прозрачность. Ведь идея впустить природу в дом – одна из стилевых особенностей шале. Все помещения оборудованы раздвижными окнами в пол. Спроектированные витражи hs-portal при больших пролетах гостиной позволяют открыть витраж и продолжить помещение, соединив его с внутренним садом.

Строение одноэтажное, с одной стороны находятся две спальни, и две ванных комнаты, с другой – санузел и баня с уникальной парной: витражные двери увеличили и без того большую парную. Объединяет оба крыла в одно живое пространство просторная и воздушная (высота потолков 5 метров) гостиная. Помещение условно делится на обеденную и гостевую зону, где может собраться большая компания.

Шале – это природные цвета и натуральные материалы. Поэтому брус в отделке стен сохранили. Тема дерева (оттенки от светло- до темно-орехового), бесспорно, определяет весь характер оформления.

Пол выложен природным камнем – шлифованным плитняком, им же вымощена придомовая территория. Плитняк – материал для улицы, здесь его применили специально, чтобы подчеркнуть отсутствие границ между внутренним и внешним пространством. Также камнем отделан и банный блок.

В целом, интерьер создавали вне времени, чтобы он оставался актуальным надолго. Этим запросом был обусловлен выбор мебели от фабрики Eichholtz. В дизайне продуктов сочетается классический стиль в современной вариации, этнические ноты и минимализм. Мебель добротная, вписывается в самые разные стили. Интерьерный текстиль Espocada.

Церемония награждения — 14 мая 2026 года!