"Студия в стиле джапанди"
Дужан Дмитрий Вячеславович!

Проект представляет собой гармоничное сочетание японского минимализма и скандинавской функциональности, что лежит в основе стиля Джапанди. Основная концепция — создание уютного, просторного и наполненного светом пространства, где каждая деталь играет свою роль в общем балансе.

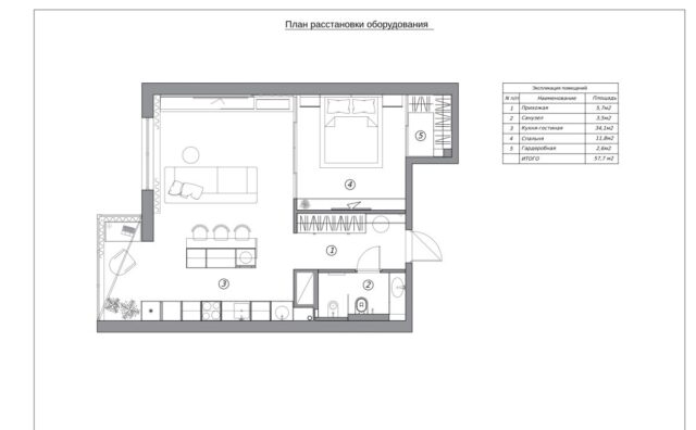
Студия объединяет жилую зону, кухню и спальню в едином пространстве, разделенном легкими перегородками из натурального дерева. Зонирование осуществляется с помощью мебели и текстиля, обеспечивая комфорт без перегрузки интерьера.

В основе оформления лежат натуральные материалы: дерево, камень, лен и хлопок. Цветовая палитра включает теплые бежевые, песочные, серо-коричневые и мягкие белые оттенки, создавая спокойную атмосферу.

Разноуровневое освещение с использованием подвесных светильников создает теплый рассеянный свет.
Каждый элемент пространства продуман до мелочей: встроенные системы хранения, лаконичная мебель с удобными местами для отдыха и работы. Пространство остается легким и воздушным, не перегруженным лишними деталями.

Проект студии в стиле Джапанди — это воплощение философии осознанного минимализма, где форма следует за функцией, а атмосфера способствует гармонии и уюта.

"Студия в стиле джапанди"
Дужан Дмитрий Вячеславович

Проект представляет собой гармоничное сочетание японского минимализма и скандинавской функциональности, что лежит в основе стиля Джапанди. Основная концепция — создание уютного, просторного и наполненного светом пространства, где каждая деталь играет свою роль в общем балансе.

Студия объединяет жилую зону, кухню и спальню в едином пространстве, разделенном легкими перегородками из натурального дерева. Зонирование осуществляется с помощью мебели и текстиля, обеспечивая комфорт без перегрузки интерьера.

В основе оформления лежат натуральные материалы: дерево, камень, лен и хлопок. Цветовая палитра включает теплые бежевые, песочные, серо-коричневые и мягкие белые оттенки, создавая спокойную атмосферу.

Разноуровневое освещение с использованием подвесных светильников создает теплый рассеянный свет.
Каждый элемент пространства продуман до мелочей: встроенные системы хранения, лаконичная мебель с удобными местами для отдыха и работы. Пространство остается легким и воздушным, не перегруженным лишними деталями.

Проект студии в стиле Джапанди — это воплощение философии осознанного минимализма, где форма следует за функцией, а атмосфера способствует гармонии и уюта.

Церемония награждения — 14 мая 2026 года!