"Аmbience HOME"
Табакина Надежда Сергеевна!

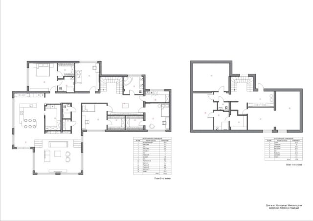
Дом находится в пригороде.

Из-за перепада ландшафта, дом как-бы состоит из двух частей- двух объемов. Нижний этаж- технический, здесь расположена входная группа, зона спа и различные технические помещения, второй этаж – жилая зона дома.

Дом оснащен системой умный дом, вентиляцией с рекуперацией + увлажнение. Систему кондиционирования заменили на Холодный потолок – благодаря этой системе, не сушится воздух и создается эффект грота или пещеры.

Любовь к минимализму, перетекающее пространство, гармония между интерьером и экстерьером, проникновение и взаимодействие – основная концепция этого интерьера.

Главной задачей было не разрушить связь, интерьера, архитектуры и ландшафта. Сформировать цельное пространство дома, при этом каждая зона должна быть особенной, со своей изюминкой.

Цветовую палитру решено было сделать максимально нейтральной.

В зависимости от поры года, погоды, времени суток меняется и цветовое решение интерьера. В гостиной, холле и в проходных зонах у нас спокойный серый цвет на стенах и потолках.

Спальню мы решили сделать более обволакивающей и выбрали невероятный цвет для стен и потолка SHARKSKIN – кожа акулы. Нейтральная цветовая гамма, природные оттенки и материалы, а также огромные панорамные окна с видом на окружающий ландшафт гармонично сложились в единую композицию, создавая атмосферу уюта и спокойствия. Каждый уголок интерьера продуман до мелочей, чтобы обеспечить комфорт и функциональность, а также вдохновить на отдых и расслабление.

"Аmbience HOME"
Табакина Надежда Сергеевна

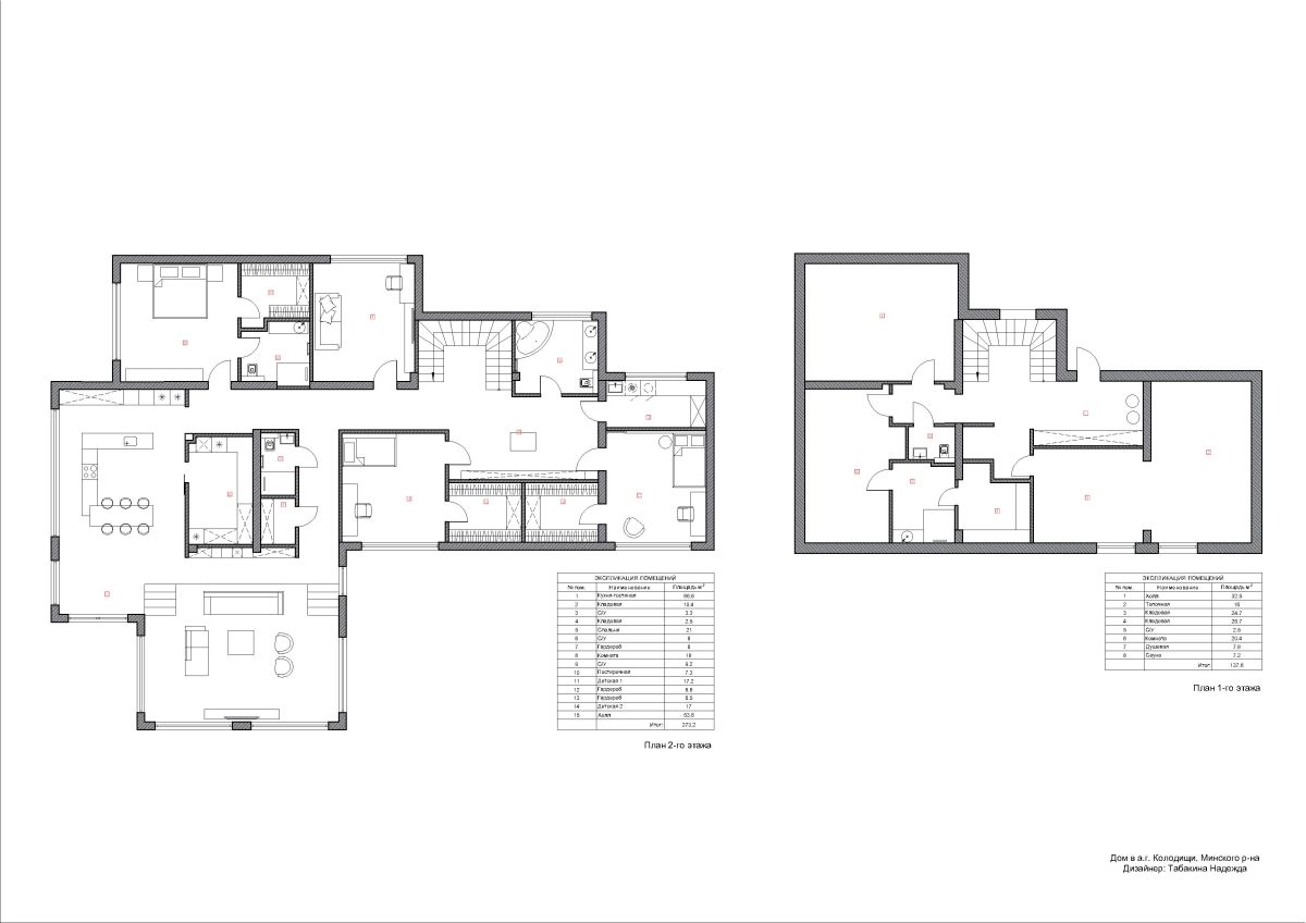
Дом находится в пригороде.

Из-за перепада ландшафта, дом как-бы состоит из двух частей- двух объемов. Нижний этаж- технический, здесь расположена входная группа, зона спа и различные технические помещения, второй этаж – жилая зона дома.

Дом оснащен системой умный дом, вентиляцией с рекуперацией + увлажнение. Систему кондиционирования заменили на Холодный потолок – благодаря этой системе, не сушится воздух и создается эффект грота или пещеры.

Любовь к минимализму, перетекающее пространство, гармония между интерьером и экстерьером, проникновение и взаимодействие – основная концепция этого интерьера.

Главной задачей было не разрушить связь, интерьера, архитектуры и ландшафта. Сформировать цельное пространство дома, при этом каждая зона должна быть особенной, со своей изюминкой.

Цветовую палитру решено было сделать максимально нейтральной.

В зависимости от поры года, погоды, времени суток меняется и цветовое решение интерьера. В гостиной, холле и в проходных зонах у нас спокойный серый цвет на стенах и потолках.

Спальню мы решили сделать более обволакивающей и выбрали невероятный цвет для стен и потолка SHARKSKIN – кожа акулы. Нейтральная цветовая гамма, природные оттенки и материалы, а также огромные панорамные окна с видом на окружающий ландшафт гармонично сложились в единую композицию, создавая атмосферу уюта и спокойствия. Каждый уголок интерьера продуман до мелочей, чтобы обеспечить комфорт и функциональность, а также вдохновить на отдых и расслабление.

Церемония награждения — 14 мая 2026 года!