"Музыкальная шкатулка"
BRAVO.BUREAU (Радик Елена Николаевна, Вакулич Ольга Анатольевна)!

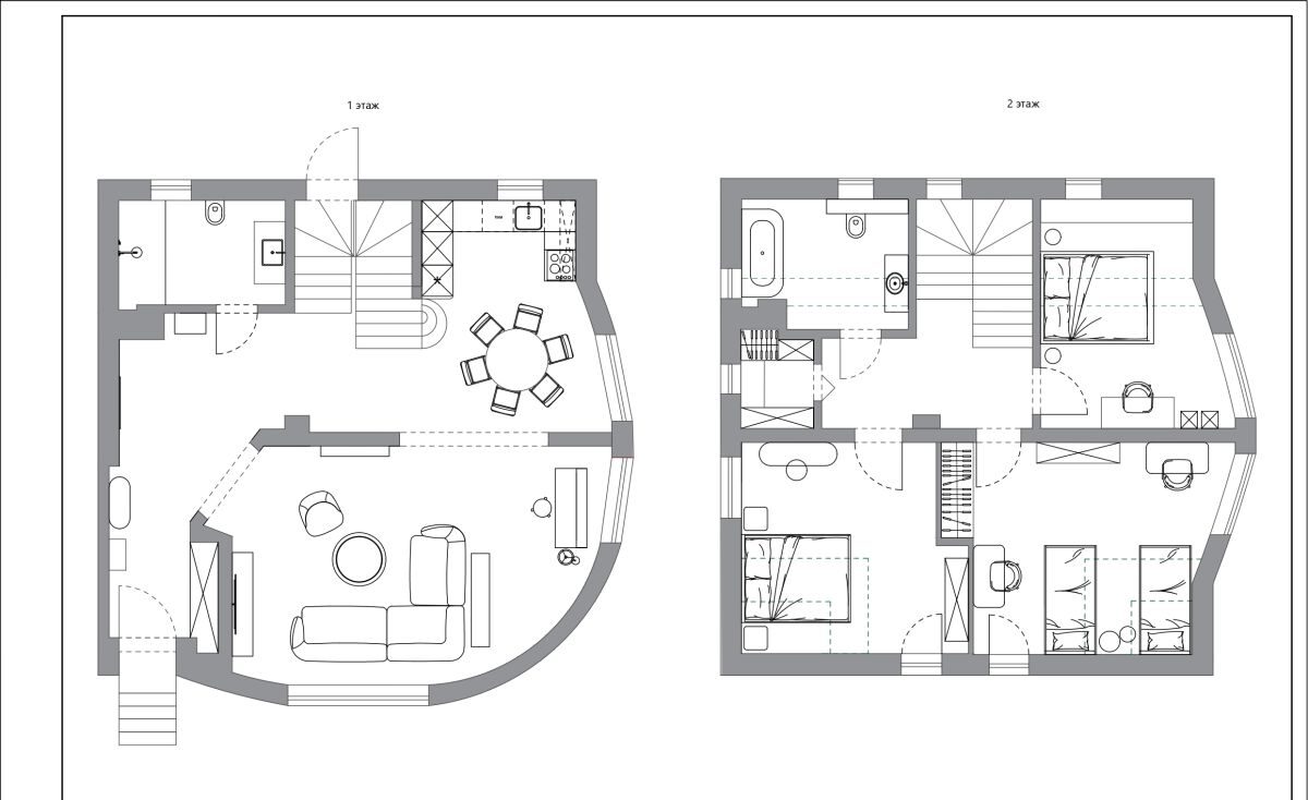
Дизайн интерьера каждого проекта — это не просто набор форм и цветов, а отражение жизни и характера его обитателей. Проект «Музыкальная шкатулка», созданный для семьи с тремя детьми, стал воплощением этой идеи.

При разработке концепции проекта мы вдохновлялись музыкальной темой, которая символизирует гармонию, ритм и единство. Каждое помещение в доме стало как бы отдельной «нотой», создающей общую мелодию семейной жизни. Наша задача заключалась в том, чтобы создать уникальное пространство, где каждый сможет выразить свою индивидуальность, в то же время все элементы будут гармонично сочетаться друг с другом.

На первом этаже, где расположены гостиная и кухня, мы использовали сочетание различных фактур. Деревянные элементы, мягкие текстильные поверхности и гладкие каменные акценты создают особую атмосферу уюта и гармонии. Открытая планировка позволяет семье проводить время вместе, одновременно наслаждаясь уединением в своих уголках.

Одна из детских комнат была оформлена яркой росписью на шкафу, отражающей творческую личность заказчицы.

В спальне мы предусмотрели туалетный столик для заказчицы. Столик стал не только функциональным, но и стильным элементом в интерьере.
Проект «Музыкальная шкатулка» стал результатом тесного сотрудничества с заказчиками и глубокого понимания их потребностей. Мы создали пространство, которое отражает индивидуальность каждого члена семьи и в то же время объединяет их в единое целое.

"Музыкальная шкатулка"
BRAVO.BUREAU (Радик Елена Николаевна, Вакулич Ольга Анатольевна)

Дизайн интерьера каждого проекта — это не просто набор форм и цветов, а отражение жизни и характера его обитателей. Проект «Музыкальная шкатулка», созданный для семьи с тремя детьми, стал воплощением этой идеи.

При разработке концепции проекта мы вдохновлялись музыкальной темой, которая символизирует гармонию, ритм и единство. Каждое помещение в доме стало как бы отдельной «нотой», создающей общую мелодию семейной жизни. Наша задача заключалась в том, чтобы создать уникальное пространство, где каждый сможет выразить свою индивидуальность, в то же время все элементы будут гармонично сочетаться друг с другом.

На первом этаже, где расположены гостиная и кухня, мы использовали сочетание различных фактур. Деревянные элементы, мягкие текстильные поверхности и гладкие каменные акценты создают особую атмосферу уюта и гармонии. Открытая планировка позволяет семье проводить время вместе, одновременно наслаждаясь уединением в своих уголках.

Одна из детских комнат была оформлена яркой росписью на шкафу, отражающей творческую личность заказчицы.

В спальне мы предусмотрели туалетный столик для заказчицы. Столик стал не только функциональным, но и стильным элементом в интерьере.
Проект «Музыкальная шкатулка» стал результатом тесного сотрудничества с заказчиками и глубокого понимания их потребностей. Мы создали пространство, которое отражает индивидуальность каждого члена семьи и в то же время объединяет их в единое целое.

Церемония награждения — 14 мая 2026 года!