"Квартира в клубном доме Brodsky"
Дизайн-бюро BELLARDO (Анна Сахарова)!

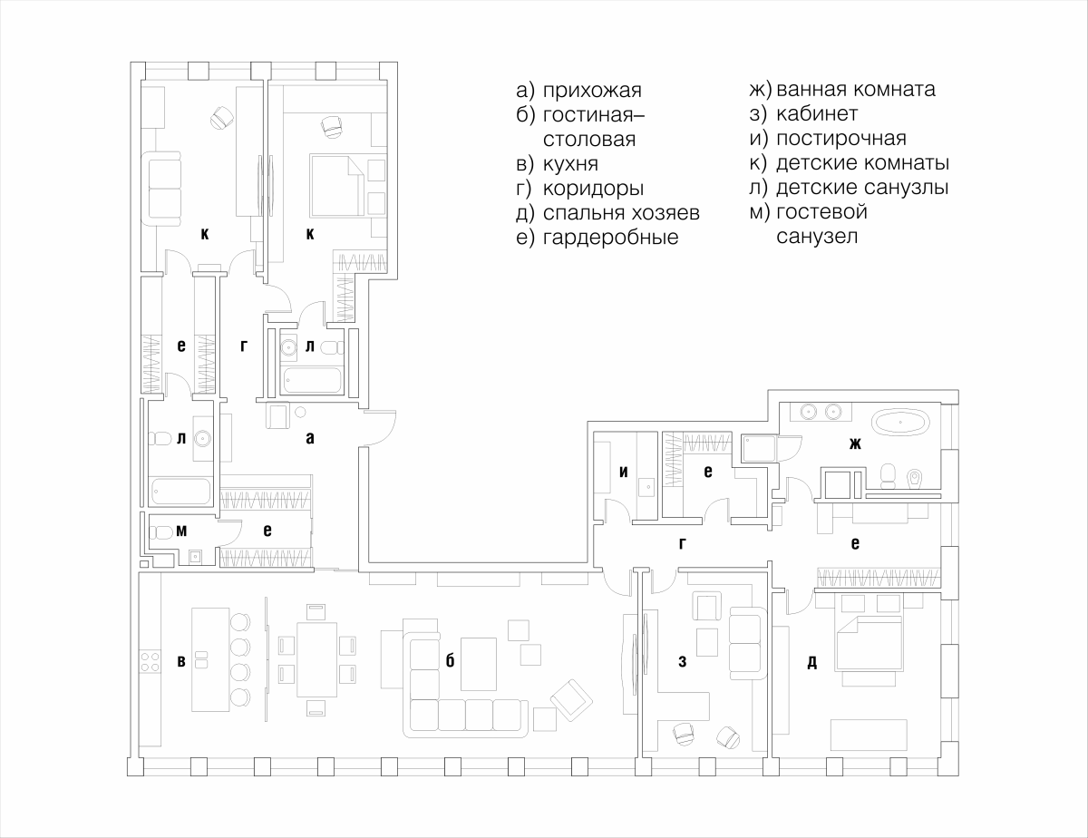
В клубном доме Brodsky от Vesper мы оформили квартиру  для семьи с двумя сыновьями, создав комфортный, спокойный, и при этом строгий интерьер для жизни. Проект квартиры разрабатывался на основе уже готового типового интерьера, который был приобретен заказчиками. В результате мы полностью преобразили отделку от застройщика, создав интерьер в глубоких графитовых оттенках с металлическими акцентами.

Учитывая пожелания хозяев, минималистичный дизайн в светлых тонах был трансформирован в сдержанно-торжественную классику, которая вобрала в себя ориентальные мотивы, современный декор и элементы ар-деко. В итоге получился глубокий практически монохромный интерьер с брутальными фактурами и нестандартными решениями. Например, необычным акцентом в гостиной стали ставни из латуни с ажурным геометрическим узором, выполненным лазерной резкой.

Интерьер создан с помощью сочетания нескольких декоративных приемов: большие заливки плоскостей, геометрия форм, высокое качество отделочных материалов и работ, которые обеспечили безупречность линий, узлов и примыканий. Темная цветовая гамма требовала особого внимания к подбору мебели и декора, поэтому предпочтение мы отдали английским и американским брендам: Baker, Ralph Lauren Home, а также добавили к ним итальянской классики — Minotti, Etro, Giorgetti, Baxter.

"Квартира в клубном доме Brodsky"
Дизайн-бюро BELLARDO (Анна Сахарова)

В клубном доме Brodsky от Vesper мы оформили квартиру  для семьи с двумя сыновьями, создав комфортный, спокойный, и при этом строгий интерьер для жизни. Проект квартиры разрабатывался на основе уже готового типового интерьера, который был приобретен заказчиками. В результате мы полностью преобразили отделку от застройщика, создав интерьер в глубоких графитовых оттенках с металлическими акцентами.

Учитывая пожелания хозяев, минималистичный дизайн в светлых тонах был трансформирован в сдержанно-торжественную классику, которая вобрала в себя ориентальные мотивы, современный декор и элементы ар-деко. В итоге получился глубокий практически монохромный интерьер с брутальными фактурами и нестандартными решениями. Например, необычным акцентом в гостиной стали ставни из латуни с ажурным геометрическим узором, выполненным лазерной резкой.

Интерьер создан с помощью сочетания нескольких декоративных приемов: большие заливки плоскостей, геометрия форм, высокое качество отделочных материалов и работ, которые обеспечили безупречность линий, узлов и примыканий. Темная цветовая гамма требовала особого внимания к подбору мебели и декора, поэтому предпочтение мы отдали английским и американским брендам: Baker, Ralph Lauren Home, а также добавили к ним итальянской классики — Minotti, Etro, Giorgetti, Baxter.

Церемония награждения — 14 мая 2026 года!