"Место силы"
Aliya Rakhimzhanova, Amina Mukatova!

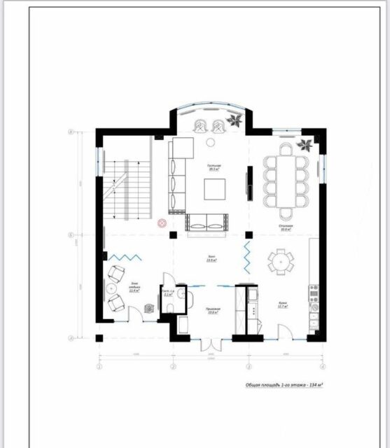
В самом сердце Алматы, среди склонов Заилийского Алатау, расположен этот четырёхэтажный дом площадью 630 кв.м. на одной из самых престижных улиц города — Оспанова. Район сочетает уединённость с близостью к природе, а неподалёку течёт горная река Весновка, создавая атмосферу спокойствия.

Когда мы вошли в проект, здание уже имело основную форму. Пространство с высокими потолками выглядело впечатляюще, но требовало доработки, чтобы стать уютным и функциональным. Нам предстояло адаптировать его под ритм жизни заказчиков — семьи, где хозяйка, профессиональный психолог и многодетная мать, ценила гармонию, а её муж, человек тонкого вкуса, стремился к утончённому, но комфортному интерьеру. Их дом должен был отражать их путешествия и духовные поиски.

Мы пересмотрели планировку, сделав первый этаж более открытым и удобным для приёма гостей. Столовую отделили камином, а гостиную наполнили светом и теплом. Кабинет хозяина перенесли на второй этаж, где также разместились приватные зоны для отдыха. Сквозной камин стал центральным элементом, наполняющим дом уютом.

Интерьер строился на натуральных материалах: дерево, мрамор, камень и тёплые природные оттенки создавали баланс. Барельефы и ручная роспись на стенах добавили пространству индивидуальность, а кухня в парижском стиле стала стильным и функциональным акцентом. Часть мебели была адаптирована из старого дома, а остальная выполнена местными мастерами.

Проект «Место силы» стал отражением жизни и ценностей семьи. Здесь каждый предмет имеет значение, каждый уголок пропитан теплом, а сам дом стал местом, куда хочется возвращаться.

"Место силы"
Aliya Rakhimzhanova, Amina Mukatova

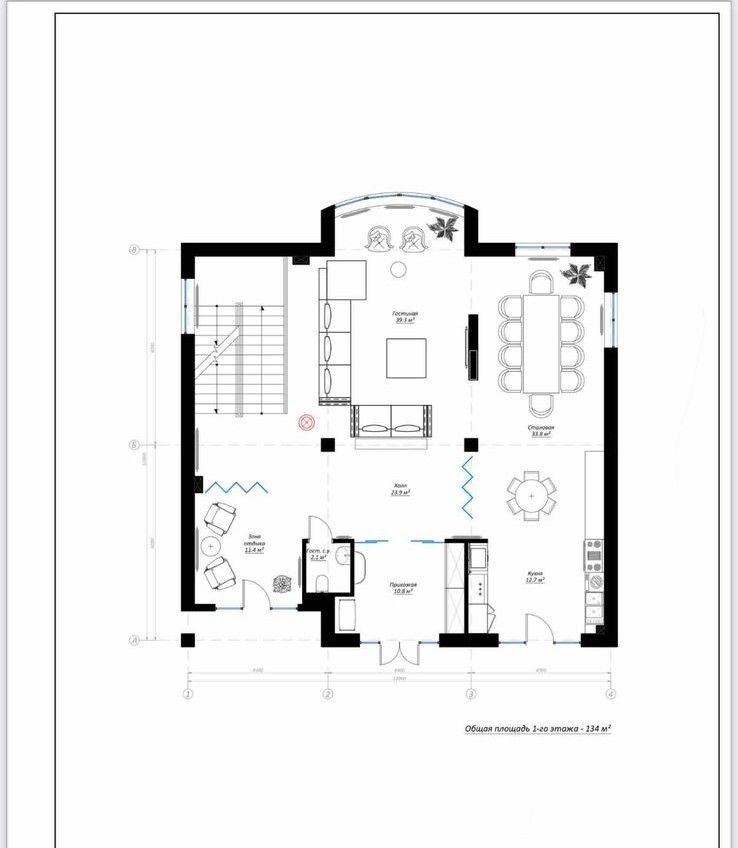
В самом сердце Алматы, среди склонов Заилийского Алатау, расположен этот четырёхэтажный дом площадью 630 кв.м. на одной из самых престижных улиц города — Оспанова. Район сочетает уединённость с близостью к природе, а неподалёку течёт горная река Весновка, создавая атмосферу спокойствия.

Когда мы вошли в проект, здание уже имело основную форму. Пространство с высокими потолками выглядело впечатляюще, но требовало доработки, чтобы стать уютным и функциональным. Нам предстояло адаптировать его под ритм жизни заказчиков — семьи, где хозяйка, профессиональный психолог и многодетная мать, ценила гармонию, а её муж, человек тонкого вкуса, стремился к утончённому, но комфортному интерьеру. Их дом должен был отражать их путешествия и духовные поиски.

Мы пересмотрели планировку, сделав первый этаж более открытым и удобным для приёма гостей. Столовую отделили камином, а гостиную наполнили светом и теплом. Кабинет хозяина перенесли на второй этаж, где также разместились приватные зоны для отдыха. Сквозной камин стал центральным элементом, наполняющим дом уютом.

Интерьер строился на натуральных материалах: дерево, мрамор, камень и тёплые природные оттенки создавали баланс. Барельефы и ручная роспись на стенах добавили пространству индивидуальность, а кухня в парижском стиле стала стильным и функциональным акцентом. Часть мебели была адаптирована из старого дома, а остальная выполнена местными мастерами.

Проект «Место силы» стал отражением жизни и ценностей семьи. Здесь каждый предмет имеет значение, каждый уголок пропитан теплом, а сам дом стал местом, куда хочется возвращаться.

Церемония награждения — 14 мая 2026 года!