"Чёрным по белому" проект коттеджа на о.Русском
Завьялова Анастасия Алексеевна!

Коттедж на о. Русском

Проект частного загородного дома для семейной пары и их сына подростка.
Задачей данного проекта было подчеркнуть современную архитектуру дома и сделать его максимально комфортным для образа жизни заказчиков. Особым пожеланием клиентов было создать интерьер насыщенный темными, обволакивающими оттенками, с применением керамогранита, дерева, скалы, декоративной штукатурки но при этом сохранить пространство, легкость, воздух и свободу в эклектике минимализма и современного стиля (контемпорари). В отделке использованы утонченные формы, натуральные материалы и тёмная томная цветовая гамма оттенков, материалов и фактур.

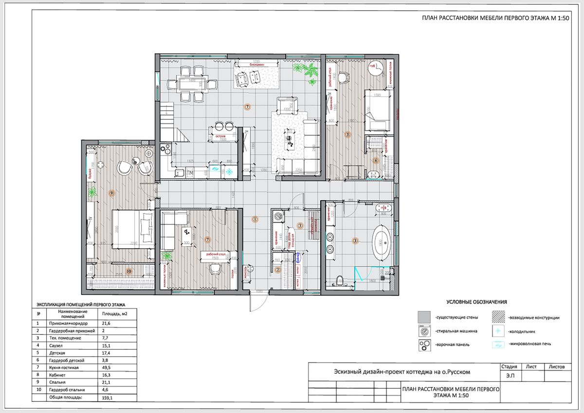
Все комнаты кроме зоны домашнего кинотеатра располагаются на первом этаже, а именно:

Детская (комната подростка) с личной гардеробной, спальная комната родителей с личной гардеробной, кухня-гостиная с большими окнами пропускающими много света и воздуха удобной большой гостевой зоной для комфортного размещения гостей, совмещённый сан узел, прачечная, рабочий кабинет с вместительными функциональными зонами хранения и удобным рабочим местом (была выполнена небольшая перепланировка), коридор. Так же в кухне-гостиной по желанию заказчика была оборудована и продумана каминная зона.

На втором этаже расположена уютная зона домашнего кинотеатра для вечернего семейного киносеанса.

Не смотря на тёмную цветовую гамму и материалы грубых фактур, за счёт больших окон, высоких потолков и многофункциональных зон дом получился по-семейному уютным и по современному стильным.

"Чёрным по белому" проект коттеджа на о.Русском
Завьялова Анастасия Алексеевна

Коттедж на о. Русском

Проект частного загородного дома для семейной пары и их сына подростка.
Задачей данного проекта было подчеркнуть современную архитектуру дома и сделать его максимально комфортным для образа жизни заказчиков. Особым пожеланием клиентов было создать интерьер насыщенный темными, обволакивающими оттенками, с применением керамогранита, дерева, скалы, декоративной штукатурки но при этом сохранить пространство, легкость, воздух и свободу в эклектике минимализма и современного стиля (контемпорари). В отделке использованы утонченные формы, натуральные материалы и тёмная томная цветовая гамма оттенков, материалов и фактур.

Все комнаты кроме зоны домашнего кинотеатра располагаются на первом этаже, а именно:

Детская (комната подростка) с личной гардеробной, спальная комната родителей с личной гардеробной, кухня-гостиная с большими окнами пропускающими много света и воздуха удобной большой гостевой зоной для комфортного размещения гостей, совмещённый сан узел, прачечная, рабочий кабинет с вместительными функциональными зонами хранения и удобным рабочим местом (была выполнена небольшая перепланировка), коридор. Так же в кухне-гостиной по желанию заказчика была оборудована и продумана каминная зона.

На втором этаже расположена уютная зона домашнего кинотеатра для вечернего семейного киносеанса.

Не смотря на тёмную цветовую гамму и материалы грубых фактур, за счёт больших окон, высоких потолков и многофункциональных зон дом получился по-семейному уютным и по современному стильным.

Церемония награждения — 14 мая 2026 года!