"Барышни"
Фаминых Мария Олеговна!

Интерьер салона перманентного макияжа «Барышни»

Вдохновленный нежностью и женственностью, интерьер салона перманента «Барышни» воплощает в себе атмосферу уюта и изысканности. Доминирующий розовый цвет создает ощущение тепла и спокойствия, настраивая посетительниц на приятные процедуры.

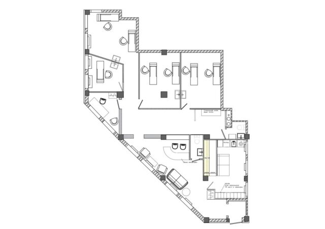
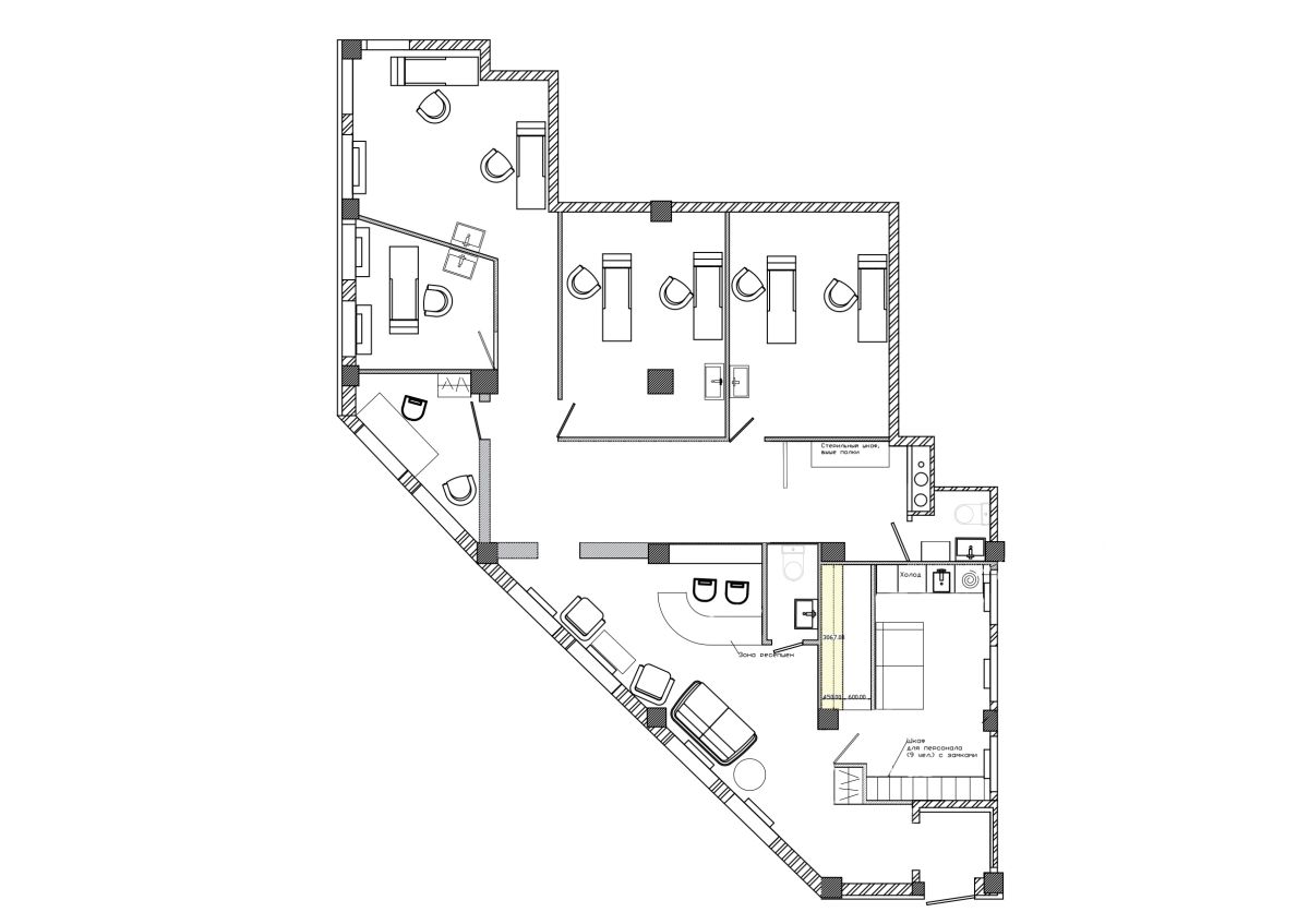
Сложная геометрия пространства с выступающими углами умело смягчена арками, которые плавно перетекают одна в другую, создавая ощущение гармонии и визуально расширяя пространство.

Особое внимание уделено деталям: оригинальные круглые журнальные столики ручной работы из подкрашенного бетона, выполненные на заказ у местных мастеров, добавляют интерьеру уникальности. Мягкий полукруглый диван и кресло для гостей создают комфортную зону ожидания.

Проект «Барышни» – это ода красоте и гармонии, где каждая деталь работает на создание неповторимой атмосферы, располагающей к преображению.

"Барышни"
Фаминых Мария Олеговна

Интерьер салона перманентного макияжа «Барышни»

Вдохновленный нежностью и женственностью, интерьер салона перманента «Барышни» воплощает в себе атмосферу уюта и изысканности. Доминирующий розовый цвет создает ощущение тепла и спокойствия, настраивая посетительниц на приятные процедуры.

Сложная геометрия пространства с выступающими углами умело смягчена арками, которые плавно перетекают одна в другую, создавая ощущение гармонии и визуально расширяя пространство.

Особое внимание уделено деталям: оригинальные круглые журнальные столики ручной работы из подкрашенного бетона, выполненные на заказ у местных мастеров, добавляют интерьеру уникальности. Мягкий полукруглый диван и кресло для гостей создают комфортную зону ожидания.

Проект «Барышни» – это ода красоте и гармонии, где каждая деталь работает на создание неповторимой атмосферы, располагающей к преображению.

Церемония награждения — 14 мая 2026 года!