"Мультибрендовый бутик Ple Ple"
Чудинова Мария Геннадьевна!

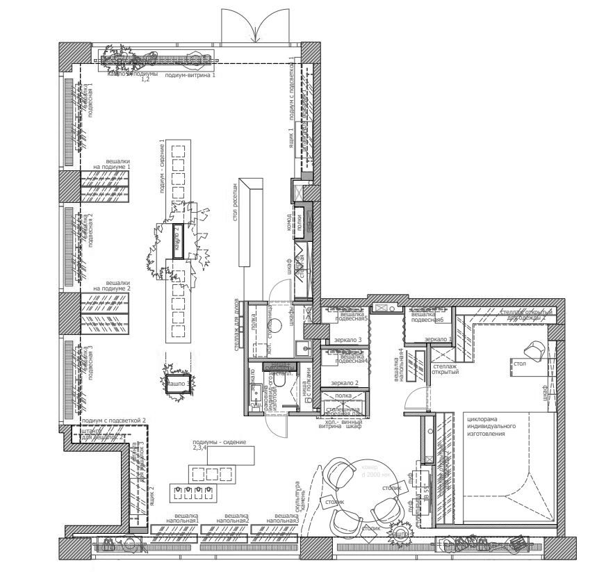
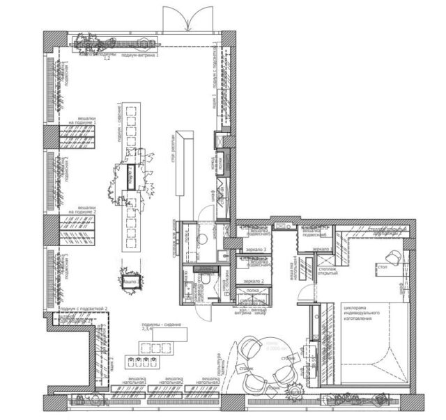
Функциональное пространство, которое должно привлекать посетителей, отображать стиль представленных брендов — основная задача, которую поставили Заказчики, при проектировании бутика.

Изначальная планировка помещения была свободной, без стен и несущих колонн.

Зонирование бутика решено ненавязчиво и органично: в торговом зале предусмотрено множество возможностей для демонстрации брендовой одежды; у кассовой стойки удобно упаковывать и оплачивать покупки; в компанию к двум комфортным примерочным мы добавили атмосферную зону ожидания с небольшой кухней. В бутике даже обустроена профессиональная фотостудия с циклорамой для модных съемок!

В интерьер бутика вложено много души, эмоций и личных воспоминаний о путешествиях в Италию. Хотелось уйти от прямых ассоциаций с этой страной – мировым центром моды, от показной роскоши, гламура, блеска. Пространство, скорее, отсылает к живописной природе и традиционной архитектуре Апеннинского полуострова.

Большая часть изделий выполнена и разработана индивидуально для данного проекта. Торговое оборудование, стеллажи и мебель — все моменты требовали тщательного подхода и выверенных решений.

В центре бутика мы высадили оливковые деревья и установили специальные тумбы, декорированные керамогранитом с эффектом терраццо, где можно отдохнуть и зарядить телефон. Зона ожидания у примерочных обозначена декоративной скалой, которая выглядит внушительно и необычно, как настоящий арт-объект. Стойка ресепшн сделана из великолепного натурального оникса, пленяющего выразительным рисунком. Потрескавшаяся штукатурка на черных полуколоннах, нейтральный бетонный пол, панели «Рябь на воде», украшающие потолок (разве не похоже на озеро Комо?), – в этих деталях «вшито» так много параллелей, метафор, ассоциаций, что интерьер см

"Мультибрендовый бутик Ple Ple"
Чудинова Мария Геннадьевна

Функциональное пространство, которое должно привлекать посетителей, отображать стиль представленных брендов — основная задача, которую поставили Заказчики, при проектировании бутика.

Изначальная планировка помещения была свободной, без стен и несущих колонн.

Зонирование бутика решено ненавязчиво и органично: в торговом зале предусмотрено множество возможностей для демонстрации брендовой одежды; у кассовой стойки удобно упаковывать и оплачивать покупки; в компанию к двум комфортным примерочным мы добавили атмосферную зону ожидания с небольшой кухней. В бутике даже обустроена профессиональная фотостудия с циклорамой для модных съемок!

В интерьер бутика вложено много души, эмоций и личных воспоминаний о путешествиях в Италию. Хотелось уйти от прямых ассоциаций с этой страной – мировым центром моды, от показной роскоши, гламура, блеска. Пространство, скорее, отсылает к живописной природе и традиционной архитектуре Апеннинского полуострова.

Большая часть изделий выполнена и разработана индивидуально для данного проекта. Торговое оборудование, стеллажи и мебель — все моменты требовали тщательного подхода и выверенных решений.

В центре бутика мы высадили оливковые деревья и установили специальные тумбы, декорированные керамогранитом с эффектом терраццо, где можно отдохнуть и зарядить телефон. Зона ожидания у примерочных обозначена декоративной скалой, которая выглядит внушительно и необычно, как настоящий арт-объект. Стойка ресепшн сделана из великолепного натурального оникса, пленяющего выразительным рисунком. Потрескавшаяся штукатурка на черных полуколоннах, нейтральный бетонный пол, панели «Рябь на воде», украшающие потолок (разве не похоже на озеро Комо?), – в этих деталях «вшито» так много параллелей, метафор, ассоциаций, что интерьер см

Церемония награждения — 14 мая 2026 года!