"ID032"
Martynov architects (Тимофей Гринёв, Максим Мартынов)!

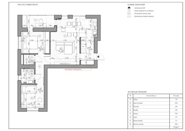
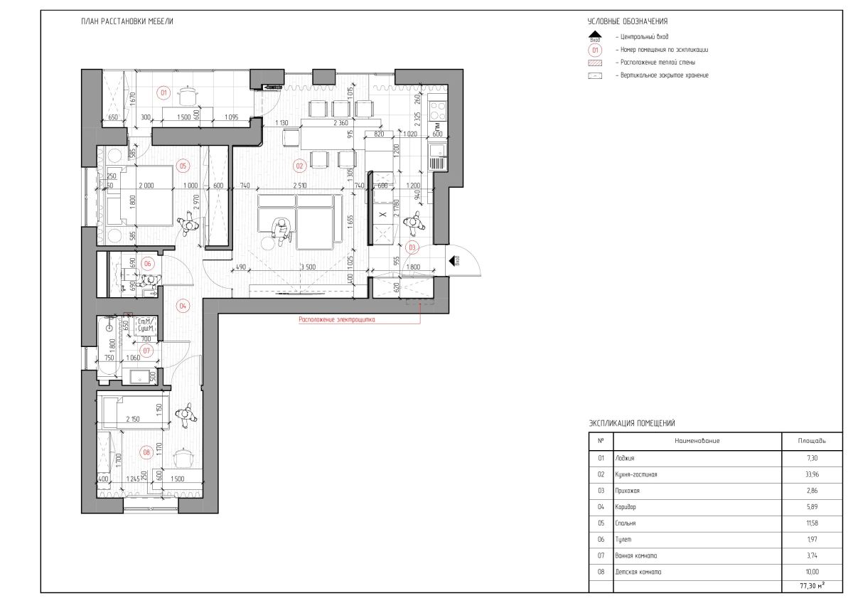
Основная концепция интерьера — создание лаконичного и функционального пространства для молодой семьи с ребенком, где каждая деталь продумана до мелочей.

При проектировании интерьера была произведена перепланировка входной зоны, что позволило гармонично зонировать пространство квартиры. Входная зона получила доступ к естественному освещению, при этом сохранив свою изолированность и избегая ощущения транзитного пространства. Просторная объединенная столовая с обеденной зоной создает удобное дополнение к кухне, где компактная и организованная рабочая зона отвечает всем требованиям функциональности. Небольшая, но уютная гостиная с TV-зоной непосредственно примыкает к входной части, обеспечивая удобный доступ. Связка зон — гостиной, столовой и кухни — формирует кольцевое движение, что добавляет пространству динамичности. Также в квартире предусмотрены детская комната и спальня родителей с лоджией, где оборудована зона кабинета.

Интерьер выдержан в светлых оттенках с акцентом на использование шпонированных панелей из березы, что придает помещению теплоту и уют. Мягкие линии в виде скругленных углов перегородок и мебели добавляют ощущение плавности. В отделке стен использована высококачественная штукатурка под покраску, на полу — широкоформатный  к и дерево. В ванной комнате применена керамическая плитка WOW в единой цветовой гамме, но с вариацией размеров, что создает уникальную текстуру и подчеркивает пространство.

"ID032"
Martynov architects (Тимофей Гринёв, Максим Мартынов)

Основная концепция интерьера — создание лаконичного и функционального пространства для молодой семьи с ребенком, где каждая деталь продумана до мелочей.

При проектировании интерьера была произведена перепланировка входной зоны, что позволило гармонично зонировать пространство квартиры. Входная зона получила доступ к естественному освещению, при этом сохранив свою изолированность и избегая ощущения транзитного пространства. Просторная объединенная столовая с обеденной зоной создает удобное дополнение к кухне, где компактная и организованная рабочая зона отвечает всем требованиям функциональности. Небольшая, но уютная гостиная с TV-зоной непосредственно примыкает к входной части, обеспечивая удобный доступ. Связка зон — гостиной, столовой и кухни — формирует кольцевое движение, что добавляет пространству динамичности. Также в квартире предусмотрены детская комната и спальня родителей с лоджией, где оборудована зона кабинета.

Интерьер выдержан в светлых оттенках с акцентом на использование шпонированных панелей из березы, что придает помещению теплоту и уют. Мягкие линии в виде скругленных углов перегородок и мебели добавляют ощущение плавности. В отделке стен использована высококачественная штукатурка под покраску, на полу — широкоформатный  к и дерево. В ванной комнате применена керамическая плитка WOW в единой цветовой гамме, но с вариацией размеров, что создает уникальную текстуру и подчеркивает пространство.

Церемония награждения — 14 мая 2026 года!