"БАНИ НА ГУЛЯХ"
Martynov architects (Максим Мартынов)!

Участок располагается в Брестском районе, д. Гули. Деревня находится в 15 км от города Брест. На участке запроектирован комплекс из трех гостевых домов с баней.

Основная концепция дома — компактный дом загородного типа, но со всем необходимым наполнением для хорошего, комфортного отдыха за городом. Архитектура представляет собой классический деревенский дом с учетом правильных пропорций, чистоты и лаконичности фасадов по принципу золотого сечения. На фронтоне присутствует геометрический орнамент. Современности добавляют большие панорамные окна кухни-столовой-гостиной. которые впускают природу во внутреннее пространство, создавая ощущение единства. Несмотря на небольшой размер дома, он наполнен всеми необходимыми инженерными коммуникациями, которые позволяют долгое и комфортное пребывание в нем.

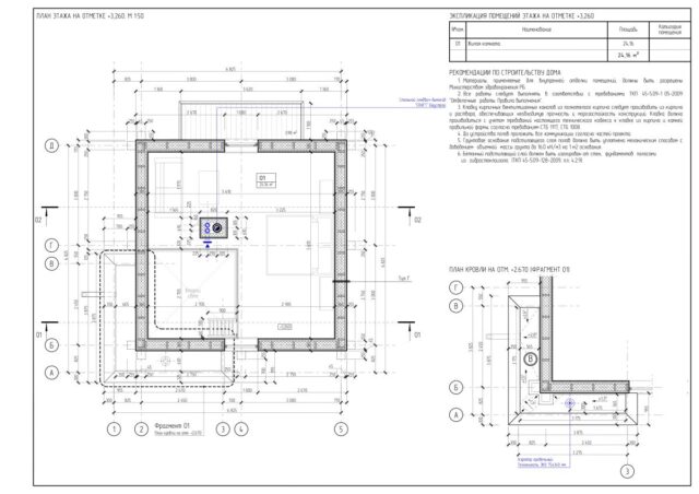
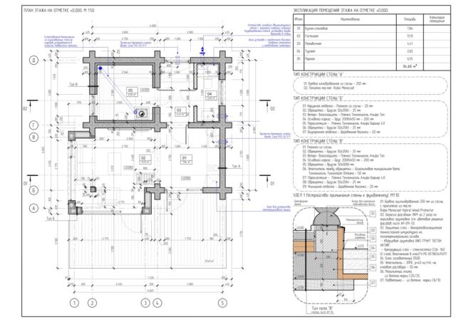
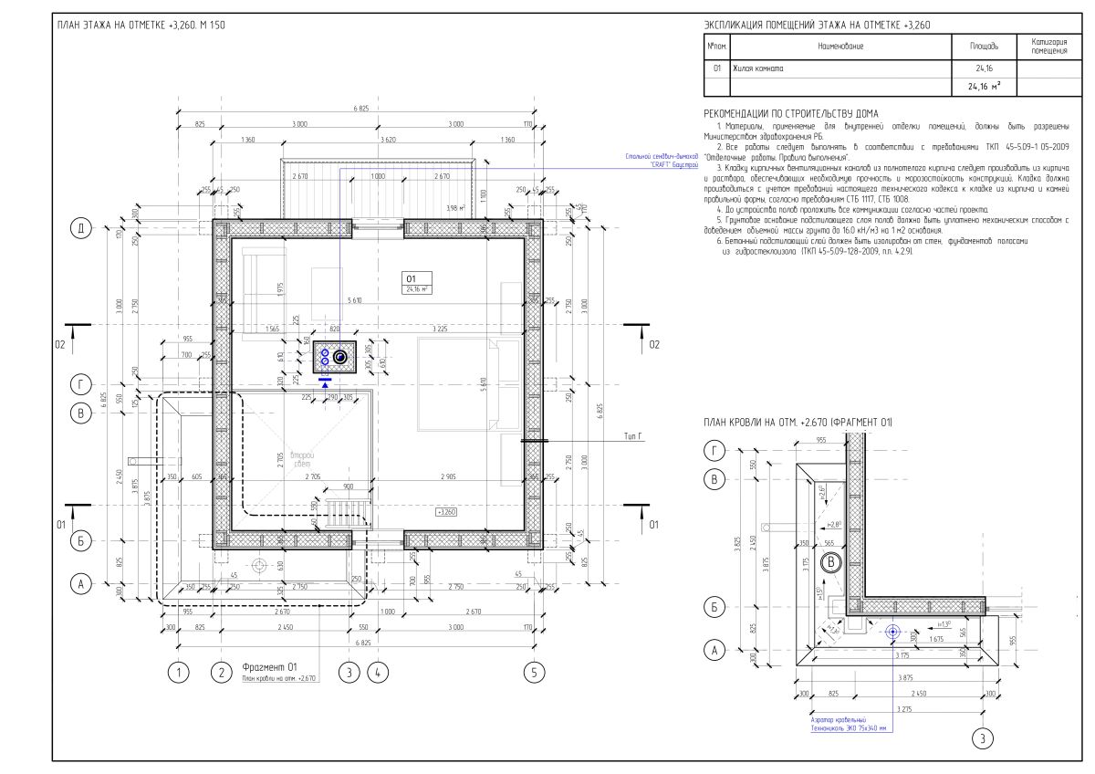
Дом запроектирован в двух технологиях: классический бревенчатый оцилиндрованный брус (несущий остов) с комбинированной каркасной технологией (все остальные элементы). Дом выглядит компактным, но при этом очень емким внутри. Кухня-столовая, гостиная с зоной отдыха, русская баня с вспомогательными помещениями, большая терраса, а на втором этаже — большая жилая комната.

В отделке фасада используется цилиндрический брус и планкен из сибирской сосны, покрытые маслом Rubio Monocoat. Остекление выполнено алюминиевыми рамами от компании «ALUTECH». Кровля — классический фальц с двумя стоячими замками от компании «Grand Line».

"БАНИ НА ГУЛЯХ"
Martynov architects (Максим Мартынов)

Участок располагается в Брестском районе, д. Гули. Деревня находится в 15 км от города Брест. На участке запроектирован комплекс из трех гостевых домов с баней.

Основная концепция дома — компактный дом загородного типа, но со всем необходимым наполнением для хорошего, комфортного отдыха за городом. Архитектура представляет собой классический деревенский дом с учетом правильных пропорций, чистоты и лаконичности фасадов по принципу золотого сечения. На фронтоне присутствует геометрический орнамент. Современности добавляют большие панорамные окна кухни-столовой-гостиной. которые впускают природу во внутреннее пространство, создавая ощущение единства. Несмотря на небольшой размер дома, он наполнен всеми необходимыми инженерными коммуникациями, которые позволяют долгое и комфортное пребывание в нем.

Дом запроектирован в двух технологиях: классический бревенчатый оцилиндрованный брус (несущий остов) с комбинированной каркасной технологией (все остальные элементы). Дом выглядит компактным, но при этом очень емким внутри. Кухня-столовая, гостиная с зоной отдыха, русская баня с вспомогательными помещениями, большая терраса, а на втором этаже — большая жилая комната.

В отделке фасада используется цилиндрический брус и планкен из сибирской сосны, покрытые маслом Rubio Monocoat. Остекление выполнено алюминиевыми рамами от компании «ALUTECH». Кровля — классический фальц с двумя стоячими замками от компании «Grand Line».

Церемония награждения — 14 мая 2026 года!