"Коттедж в живописном лесу"
Комник Элла Александровна!

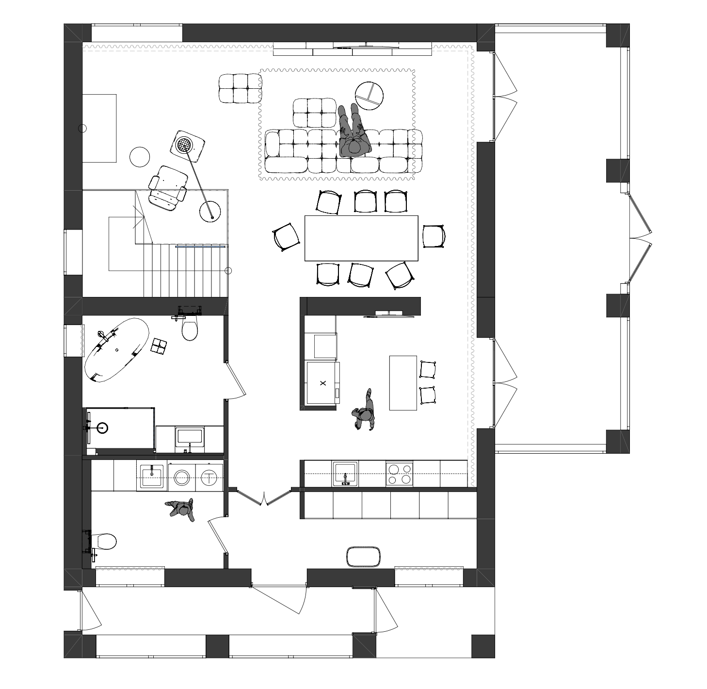
Сам коттедж расположен в живописной лесной зоне. Получившийся интерьер стал воплощением идеального сочетания гармонии с природой и современного дизайна. что создает уникальную атмосферу уюта и спокойствия.

При создании интерьера мы руководствовались стилем минимализм. Мы стремились к тому, чтобы каждая деталь подчеркивала элегантность и чистоту линий, которые так важны в современном дизайне. Светлые оттенки, используемые в оформлении помещений, создают ощущение простора и воздушности, а также визуально расширяют границы. Это дает возможность хозяевам не только наслаждаться комфортом, но и чувствовать себя единым целым с окружающим миром.

Мы внедрили акценты темных цветов и фактур. Это добавляет интерьеру глубину и изысканность, а также позволяет создать интересные контрасты с пастельными тонами. Темные элементы, такие как деревянные фактуры, использованные в отделке, или акцентные предметы мебели, привносят нотки динамики и выразительности, обогащая общую палитру. Каждое помещение в доме продумано до мелочей. Мы уделили особое внимание освещению, которое создает атмосферу тепла и уюта, делая вечерние посиделки особенно запоминающимися. Использование натуральных материалов, таких как дерево и камень, не только подчеркивает связь с природой, но и обеспечивает долговечность и практичность.

Данный проект стал настоящим отражением пожеланий наших клиентов создать свое идеальное пространство для жизни, где каждый уголок наполнен уютом и гармонией. Мы уверены, что этот дом будет вдохновлять своих хозяев на новые свершения и радовать их своей красотой на протяжении многих лет.

"Коттедж в живописном лесу"
Комник Элла Александровна

Сам коттедж расположен в живописной лесной зоне. Получившийся интерьер стал воплощением идеального сочетания гармонии с природой и современного дизайна. что создает уникальную атмосферу уюта и спокойствия.

При создании интерьера мы руководствовались стилем минимализм. Мы стремились к тому, чтобы каждая деталь подчеркивала элегантность и чистоту линий, которые так важны в современном дизайне. Светлые оттенки, используемые в оформлении помещений, создают ощущение простора и воздушности, а также визуально расширяют границы. Это дает возможность хозяевам не только наслаждаться комфортом, но и чувствовать себя единым целым с окружающим миром.

Мы внедрили акценты темных цветов и фактур. Это добавляет интерьеру глубину и изысканность, а также позволяет создать интересные контрасты с пастельными тонами. Темные элементы, такие как деревянные фактуры, использованные в отделке, или акцентные предметы мебели, привносят нотки динамики и выразительности, обогащая общую палитру. Каждое помещение в доме продумано до мелочей. Мы уделили особое внимание освещению, которое создает атмосферу тепла и уюта, делая вечерние посиделки особенно запоминающимися. Использование натуральных материалов, таких как дерево и камень, не только подчеркивает связь с природой, но и обеспечивает долговечность и практичность.

Данный проект стал настоящим отражением пожеланий наших клиентов создать свое идеальное пространство для жизни, где каждый уголок наполнен уютом и гармонией. Мы уверены, что этот дом будет вдохновлять своих хозяев на новые свершения и радовать их своей красотой на протяжении многих лет.

Церемония награждения — 14 мая 2026 года!