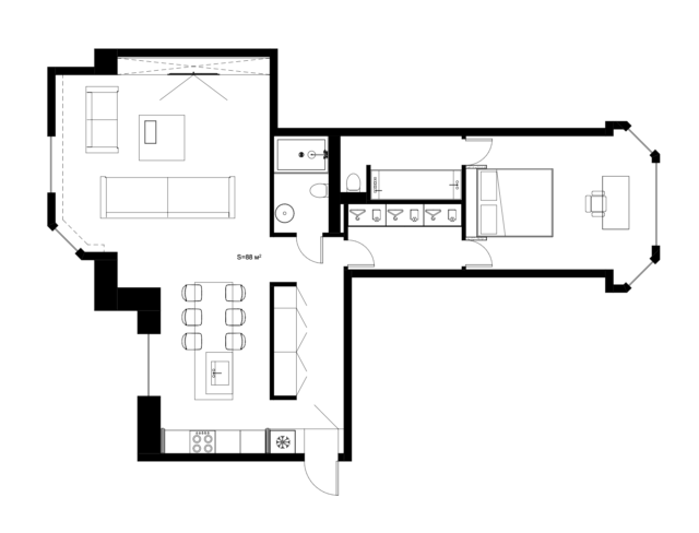
ЖК "MONTBLANC RESIDENCE"
Комник Элла Александровна!

Уникальное пространство для молодой семьи. Использование натуральных материалов в интерьере добавляет минималистичному дизайну уюта и атмосферности. Все элементы дизайна взаимосвязаны и создают гармоничное пространство , способствующее комфорту и вдохновению. В интерьере превалируют светлые оттенки, визуально расширяя пространство.

Шпон и натуральный мрамор, используемые в отделке мебели, удачно контрастируют со светлыми тонами и придают пространству естественность и теплоту. Функциональность планировки и архитектура жилого комплекса позволили нам создать пространство, которое каждый день радует и наполняет живущих в нем людей.

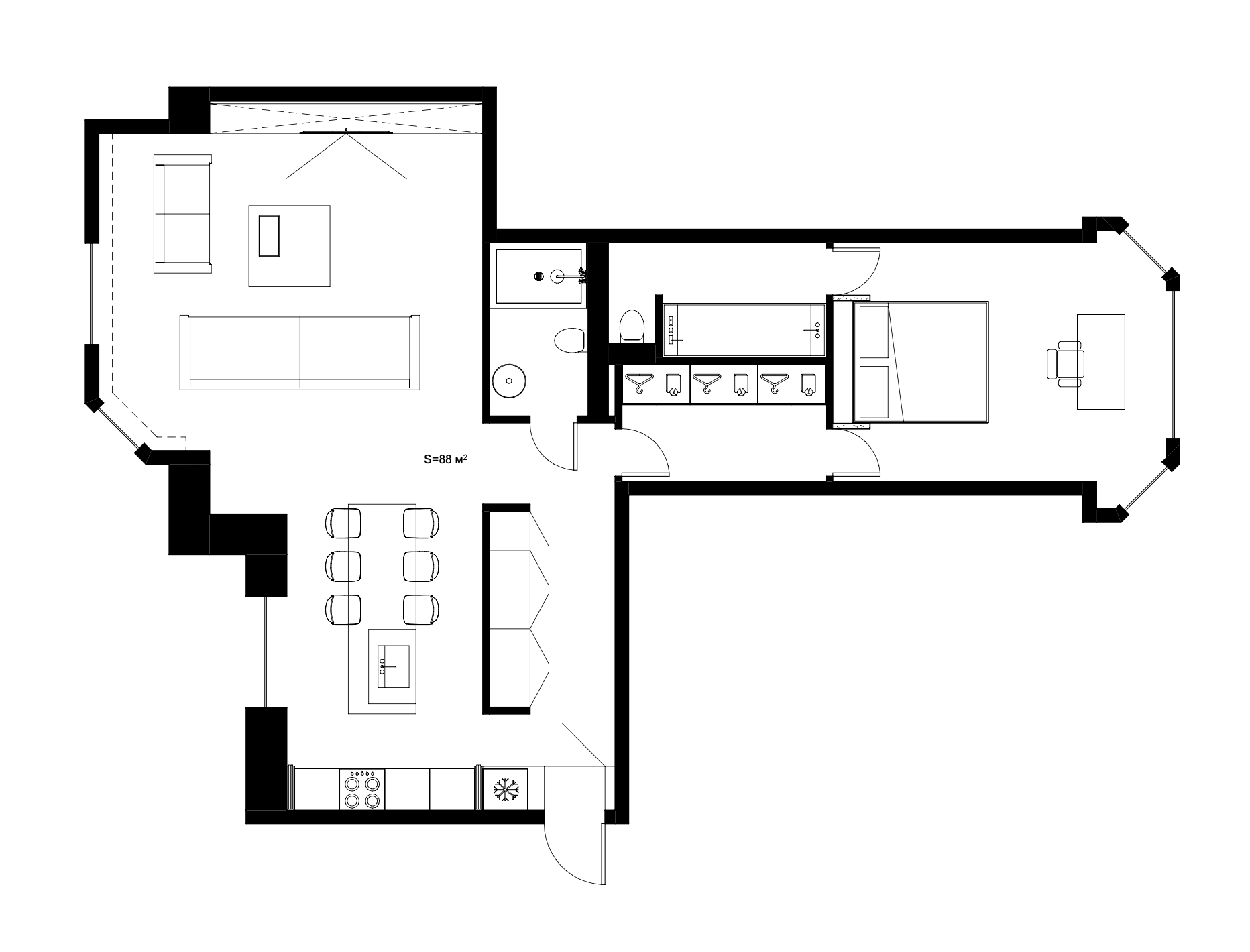
ЖК "MONTBLANC RESIDENCE"
Комник Элла Александровна

Уникальное пространство для молодой семьи. Использование натуральных материалов в интерьере добавляет минималистичному дизайну уюта и атмосферности. Все элементы дизайна взаимосвязаны и создают гармоничное пространство , способствующее комфорту и вдохновению. В интерьере превалируют светлые оттенки, визуально расширяя пространство.

Шпон и натуральный мрамор, используемые в отделке мебели, удачно контрастируют со светлыми тонами и придают пространству естественность и теплоту. Функциональность планировки и архитектура жилого комплекса позволили нам создать пространство, которое каждый день радует и наполняет живущих в нем людей.

Церемония награждения — 14 мая 2026 года!