"Теплый вдох"
Тимохина Надежда Георгиевна!

Этот интерьер — про воздух, баланс и тактильность. Клиент мечтал о пространстве, где ощущается легкость, где нет перегруженности деталями, но в то же время присутствует глубина.

Как это реализовано?
• Исчезающие границы. Кухня-гостиная и обеденная зона словно растворяются друг в друге: цвет мягко перетекает с одной фактуры на другую, мебель визуально встроена в пространство, создавая эффект архитектурного единства.
• Функция как искусство. Каждая деталь продумана до миллиметра: вместо стандартных решений – мебель, созданная по авторским эскизам. Кухня без тяжелых верхних шкафов, встроенные шкафы, которые становятся частью стен, гардеробная, где хранение организовано так, чтобы ничто не загромождало пространство.
• Пространство, которое звучит. Интерьер построен на нюансах: бархатистая текстура стен, полупрозрачные элементы, текстиль, который «дышит». Здесь нет случайных деталей – каждая вещь работает на ощущение легкости.
• Ключевой акцент – искусство. Гостиную украшает картина Руслана Вашкевича, известного белорусского художника, которая стала смысловым центром интерьера и задала ему особый ритм.

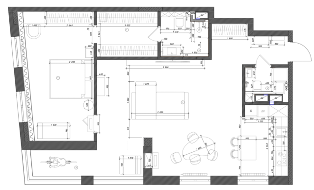
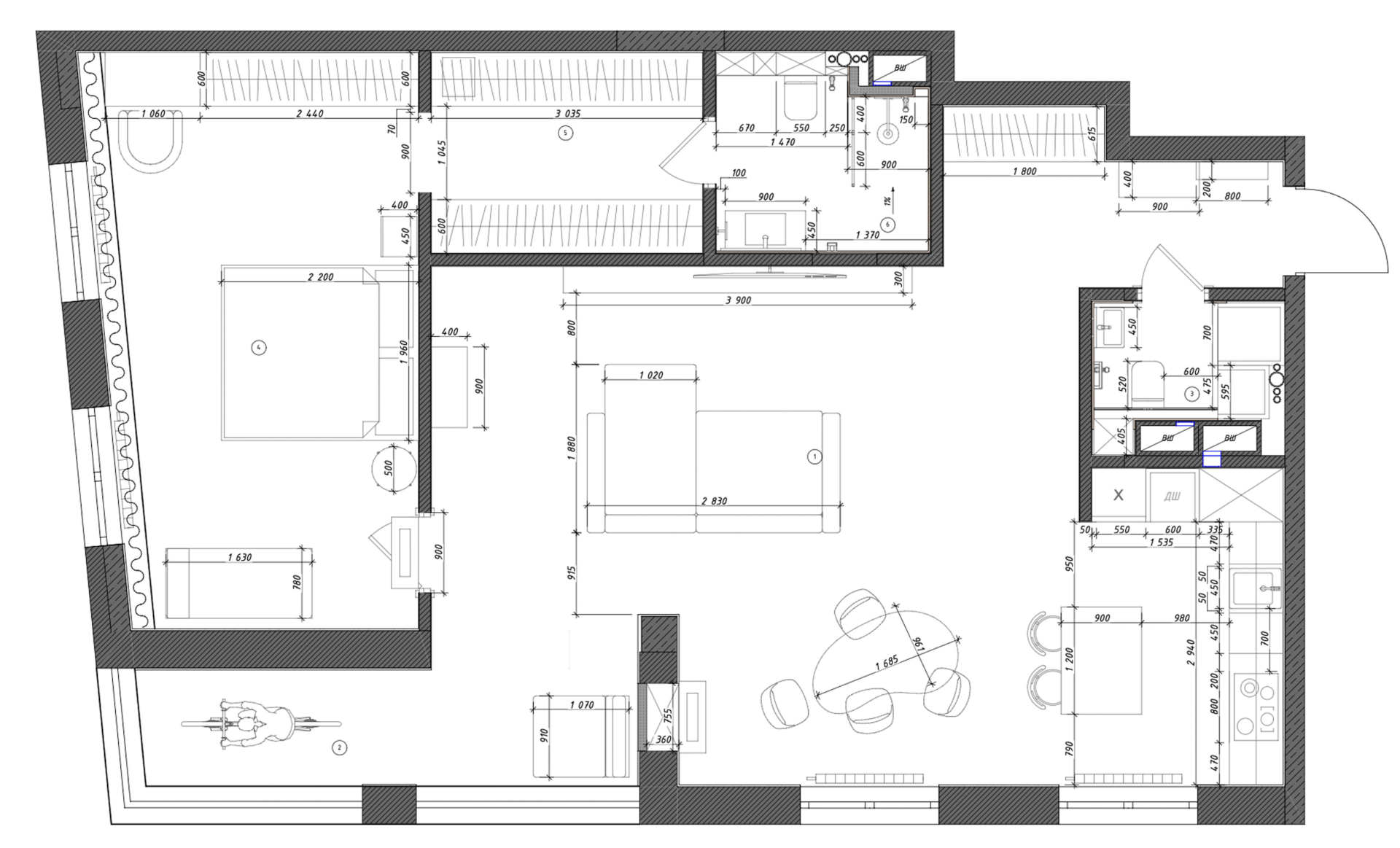
На 97 м² удалось разместить прихожую, кухню-гостиную с обеденным столом и барной консолью, уютную TV-зону, хозяйскую спальню с гардеробной и собственной ванной комнатой, а также гостевой санузел.

Этот проект — не просто о дизайне, он про эмоции, которые вызывает пространство.

"Теплый вдох"
Тимохина Надежда Георгиевна

Этот интерьер — про воздух, баланс и тактильность. Клиент мечтал о пространстве, где ощущается легкость, где нет перегруженности деталями, но в то же время присутствует глубина.

Как это реализовано?
• Исчезающие границы. Кухня-гостиная и обеденная зона словно растворяются друг в друге: цвет мягко перетекает с одной фактуры на другую, мебель визуально встроена в пространство, создавая эффект архитектурного единства.
• Функция как искусство. Каждая деталь продумана до миллиметра: вместо стандартных решений – мебель, созданная по авторским эскизам. Кухня без тяжелых верхних шкафов, встроенные шкафы, которые становятся частью стен, гардеробная, где хранение организовано так, чтобы ничто не загромождало пространство.
• Пространство, которое звучит. Интерьер построен на нюансах: бархатистая текстура стен, полупрозрачные элементы, текстиль, который «дышит». Здесь нет случайных деталей – каждая вещь работает на ощущение легкости.
• Ключевой акцент – искусство. Гостиную украшает картина Руслана Вашкевича, известного белорусского художника, которая стала смысловым центром интерьера и задала ему особый ритм.

На 97 м² удалось разместить прихожую, кухню-гостиную с обеденным столом и барной консолью, уютную TV-зону, хозяйскую спальню с гардеробной и собственной ванной комнатой, а также гостевой санузел.

Этот проект — не просто о дизайне, он про эмоции, которые вызывает пространство.

Церемония награждения — 14 мая 2026 года!