"WOOD"
COMFORT DESIGN (Елена Жебрун)!

Дизайн квартиры заказали родители для своего 18-го сына. Мне , как дизайнеру было сложно угодить двум поколениям.

Основные принципы при создании данного интерьера — это сочетание функциональности, стиля и уюта. В центре концепции лежит минималистичный подход, который предполагает отсутствие лишних деталей и чёткую организацию пространства.

Стены квартиры окрашены в светлые нейтральные оттенки, это позволяет создать ощущение лёгкости и простора. Пол и мебель на контрасте более глубоких оттенков.

Для акцентов используются элементы из метала и дерева. Шпонированные панели и мебель придают помещению тепло и натуральность.

Музыкальные инструменты занимают важное место в интерьере. Гитара в спальне , расположилась у окна не просто так. От застройщика достались заниженные окна с глубокими подоконниками — а это идеальное место для вдохновения и написания музыки.
Инструменты не только подчеркивают любовь к музыке, но и добавляют оригинальности и самовыражения в оформление интерьера.

Ванная комната, облицована темным керамогранитом, что добавляет нотку элегантности и современности. Темные стены разбавлены белой сантехникой создавая контрастный и стильный образ. Сдержанные линии мебели и освещения подчеркивают общую минималистичную концепцию.

Такой дизайн не только удовлетворит эстетические предпочтения двух поколений , но и создаст пространство, способствующее продуктивной и творческой жизни. В каждом элементе интерьера будет чувствоваться глубокое уважение к качественным материалам и функциональности, что позволит оставаться в гармонии с собой и окружающим пространством.

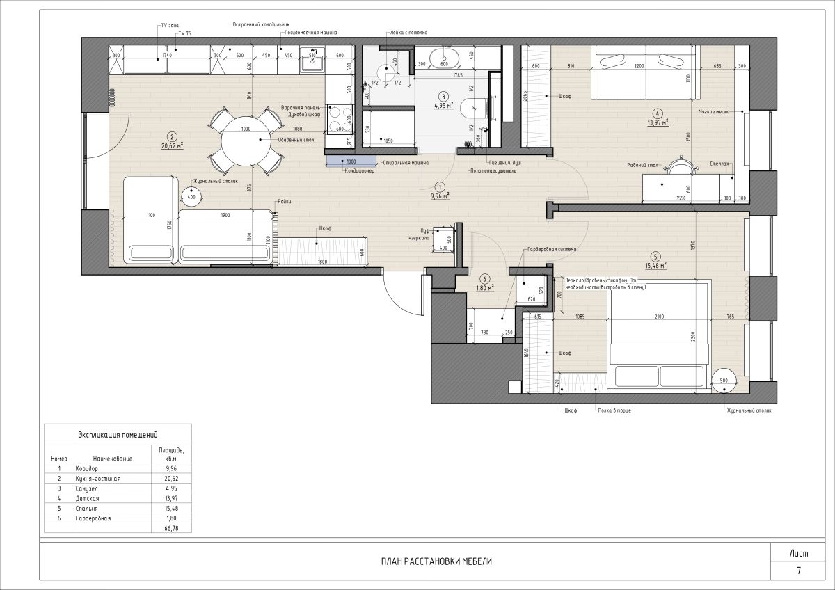
Общая проектируемая площадь 66,78м2.
В квартире 2 изолирование спальни, кухня гостиная , ванная комната и кладовая. Одна из спален спроектирована под кабинет(гостевую спальню). Но в будущем при необходимости легко трансформируется в детскую в которой все предусмотрено.

"WOOD"
COMFORT DESIGN (Елена Жебрун)

Дизайн квартиры заказали родители для своего 18-го сына. Мне , как дизайнеру было сложно угодить двум поколениям.

Основные принципы при создании данного интерьера — это сочетание функциональности, стиля и уюта. В центре концепции лежит минималистичный подход, который предполагает отсутствие лишних деталей и чёткую организацию пространства.

Стены квартиры окрашены в светлые нейтральные оттенки, это позволяет создать ощущение лёгкости и простора. Пол и мебель на контрасте более глубоких оттенков.

Для акцентов используются элементы из метала и дерева. Шпонированные панели и мебель придают помещению тепло и натуральность.

Музыкальные инструменты занимают важное место в интерьере. Гитара в спальне , расположилась у окна не просто так. От застройщика достались заниженные окна с глубокими подоконниками — а это идеальное место для вдохновения и написания музыки.
Инструменты не только подчеркивают любовь к музыке, но и добавляют оригинальности и самовыражения в оформление интерьера.

Ванная комната, облицована темным керамогранитом, что добавляет нотку элегантности и современности. Темные стены разбавлены белой сантехникой создавая контрастный и стильный образ. Сдержанные линии мебели и освещения подчеркивают общую минималистичную концепцию.

Такой дизайн не только удовлетворит эстетические предпочтения двух поколений , но и создаст пространство, способствующее продуктивной и творческой жизни. В каждом элементе интерьера будет чувствоваться глубокое уважение к качественным материалам и функциональности, что позволит оставаться в гармонии с собой и окружающим пространством.

Общая проектируемая площадь 66,78м2.
В квартире 2 изолирование спальни, кухня гостиная , ванная комната и кладовая. Одна из спален спроектирована под кабинет(гостевую спальню). Но в будущем при необходимости легко трансформируется в детскую в которой все предусмотрено.

Церемония награждения — 14 мая 2026 года!