"Домашний уют в Скандинавском"
Кульбачинская Элла Петровна!

Визуализация таунхауса в жилом комплексе «Скандинавское предместье»

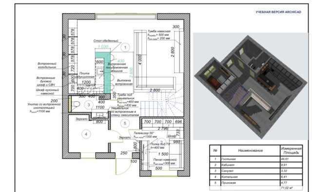
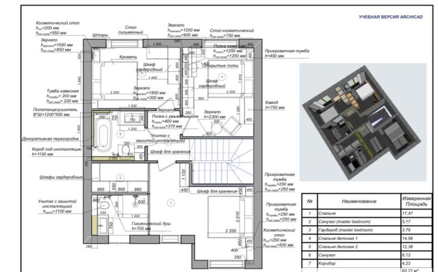
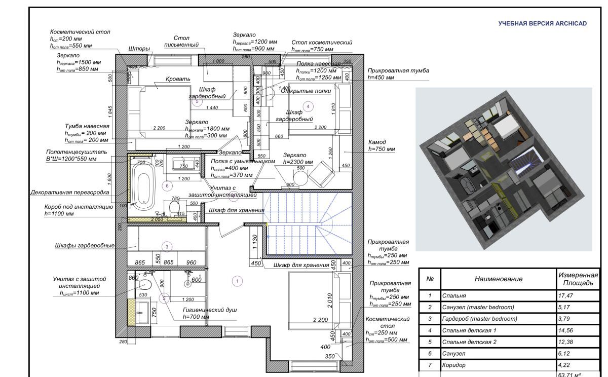
Дизайн дома проработан для семьи из 4-х человек, где каждый из членов семьи, не смотря на любовь уединения в своем личном пространстве, любит проводить время вместе и приглашать к себе гостей. В этом доме пахнет чистотой скандинавских фьордов с нотками соснового леса. Здесь можно отдохнуть от суеты большого города, погрузиться в свободу и беззаботность.

"Домашний уют в Скандинавском"
Кульбачинская Элла Петровна

Визуализация таунхауса в жилом комплексе «Скандинавское предместье»

Дизайн дома проработан для семьи из 4-х человек, где каждый из членов семьи, не смотря на любовь уединения в своем личном пространстве, любит проводить время вместе и приглашать к себе гостей. В этом доме пахнет чистотой скандинавских фьордов с нотками соснового леса. Здесь можно отдохнуть от суеты большого города, погрузиться в свободу и беззаботность.

Церемония награждения — 14 мая 2026 года!