"Луна"
Знахарчук Наталья Сергеевна!

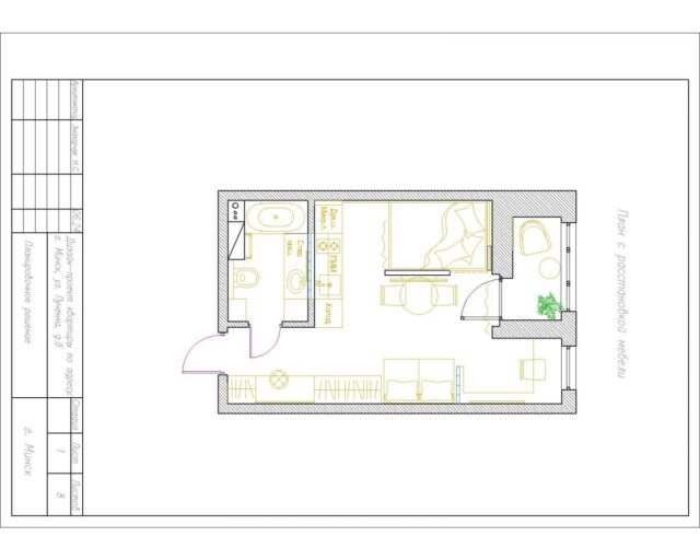
Квартира студия по заданию заказчика проектировалась и реализовывалась как коммерческий проект для продажи в дальнейшем в ценовом сегменте выше рынка.

Главным пожеланием заказчика было включить в интерьер какой то особенный запоминающийся элемент. Им стал барельеф Луна в спальной зоне. Планировочное решение квартиры тщательно продумано, в эти 27 метров вмещено все необходимое для жизни, не уступая перечнем и комфортом квартирам с большей площадью. Зона спальни от зоны кухни гостиной отделена перегородкой и текстилем, что позволяет сохранить зону сна приватной, большая редкость для квартир такой площади. Есть пространство для работы у окна, небольшой диван и много мест для хранения, в санузле вместилась даже ванна.

Мною предусмотрены различные световые сценарии, способствующие подъему внутреннего состояния и приятной смене настроения, даже в рабочей зоне кухни две линии подсветки, белый и желый свет. Выступающие элементы барельефа могут восприниматься и ощущаться по разному, так как диммирование света позволяет менять настроение, уводя свет как в тёплую оранжевую так и в холодную синюю световые гаммы, что определённо придаёт космического волшебства пространству.
Часть стены между санузлом и кухней заменила на стеклоблоки с контрастными швами, таким образом естественный свет окон или искусственный свет подсветки кухни передают насквозь легкое, мягкое свечение в санузел.
Несмотря на спокойные нейтральные тона отделок этого интерьера, графичные чёрные линии потолка, мебели, стульев добавляют интерес и динамику интерьеру.

"Луна"
Знахарчук Наталья Сергеевна

Квартира студия по заданию заказчика проектировалась и реализовывалась как коммерческий проект для продажи в дальнейшем в ценовом сегменте выше рынка.

Главным пожеланием заказчика было включить в интерьер какой то особенный запоминающийся элемент. Им стал барельеф Луна в спальной зоне. Планировочное решение квартиры тщательно продумано, в эти 27 метров вмещено все необходимое для жизни, не уступая перечнем и комфортом квартирам с большей площадью. Зона спальни от зоны кухни гостиной отделена перегородкой и текстилем, что позволяет сохранить зону сна приватной, большая редкость для квартир такой площади. Есть пространство для работы у окна, небольшой диван и много мест для хранения, в санузле вместилась даже ванна.

Мною предусмотрены различные световые сценарии, способствующие подъему внутреннего состояния и приятной смене настроения, даже в рабочей зоне кухни две линии подсветки, белый и желый свет. Выступающие элементы барельефа могут восприниматься и ощущаться по разному, так как диммирование света позволяет менять настроение, уводя свет как в тёплую оранжевую так и в холодную синюю световые гаммы, что определённо придаёт космического волшебства пространству.
Часть стены между санузлом и кухней заменила на стеклоблоки с контрастными швами, таким образом естественный свет окон или искусственный свет подсветки кухни передают насквозь легкое, мягкое свечение в санузел.
Несмотря на спокойные нейтральные тона отделок этого интерьера, графичные чёрные линии потолка, мебели, стульев добавляют интерес и динамику интерьеру.

Церемония награждения — 14 мая 2026 года!