"НАЧАЛО"
Кириленко Кирилл Владимирович, Поплавская Олеся Васильевна!

«НАЧАЛО»
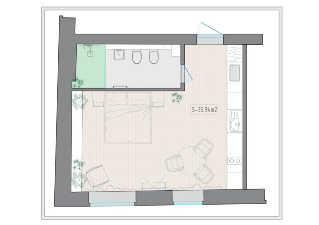
Мы создали не просто место для проживания, а уникальное пространство, где каждый гость может найти вдохновение и комфорт. Интерьер однокомнатной квартиры-студии становится одой простоте и естественности, где каждое пространство — будь то зона отдыха, кухня или ванная комната — создано с учетом гармонии с окружающей природой.

Слияние современных дизайнерских решений с антикварными элементами, такими как элегантное кресло, изысканная рама для картин и стильный комод, добавляет уникальности и глубины, превращая это пространство в идеальное место для размышлений и самовыражения. Здесь приятно находиться, позволяя забыть о суете повседневной жизни. Каждый гость может насладиться атмосферой умиротворения и погрузиться в мир собственных мыслей и идей, независимо от возраста и пола.

"НАЧАЛО"
Кириленко Кирилл Владимирович, Поплавская Олеся Васильевна

«НАЧАЛО»
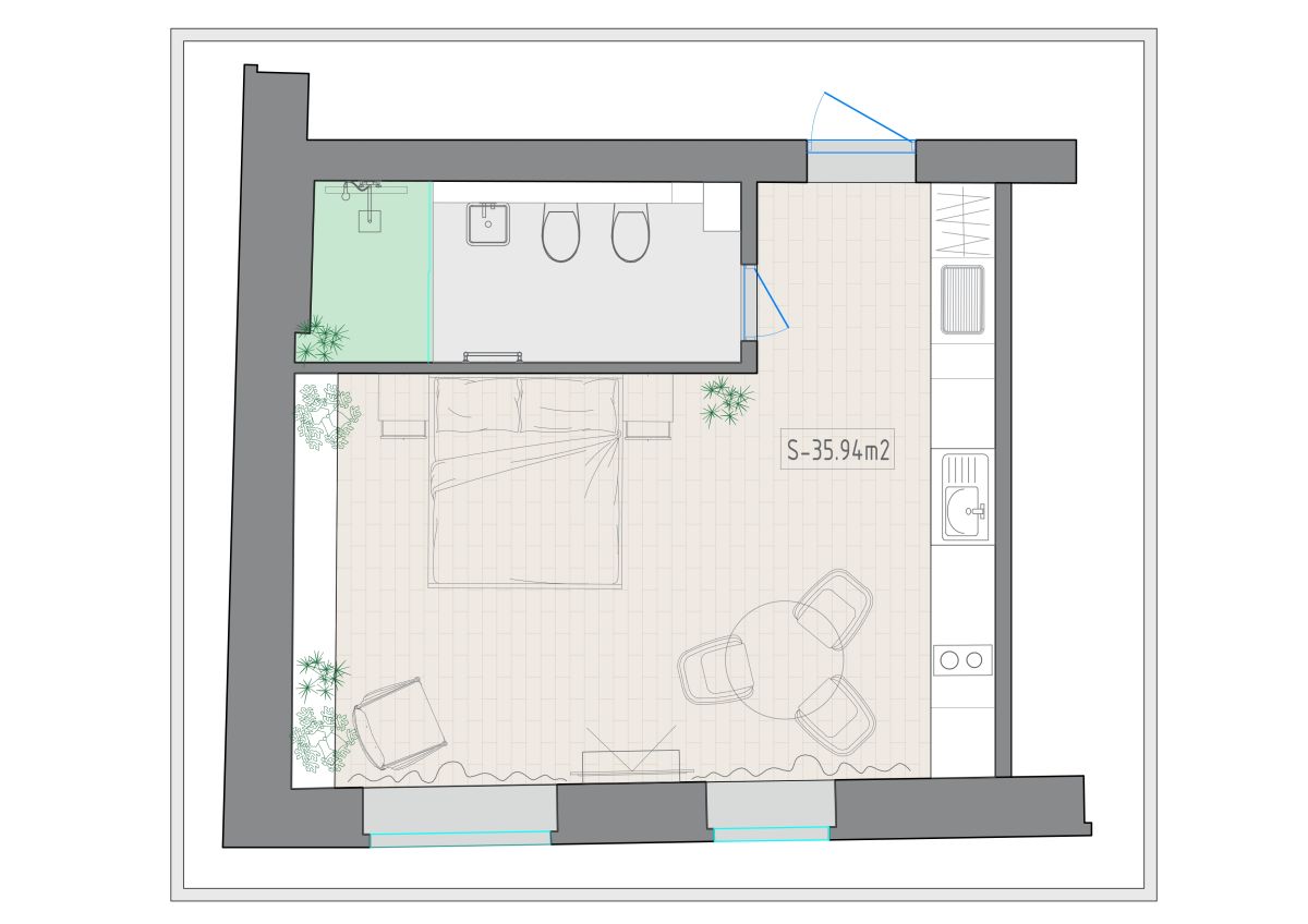
Мы создали не просто место для проживания, а уникальное пространство, где каждый гость может найти вдохновение и комфорт. Интерьер однокомнатной квартиры-студии становится одой простоте и естественности, где каждое пространство — будь то зона отдыха, кухня или ванная комната — создано с учетом гармонии с окружающей природой.

Слияние современных дизайнерских решений с антикварными элементами, такими как элегантное кресло, изысканная рама для картин и стильный комод, добавляет уникальности и глубины, превращая это пространство в идеальное место для размышлений и самовыражения. Здесь приятно находиться, позволяя забыть о суете повседневной жизни. Каждый гость может насладиться атмосферой умиротворения и погрузиться в мир собственных мыслей и идей, независимо от возраста и пола.

Церемония награждения — 14 мая 2026 года!