"DARK EMOTION"
Кустова Олеся Юрьевна!

Представляю вам интерьер для молодого мужчины 25 лет.

При выборе референсов для концепции будущего интерьера клиента зацепил именно темный вариант.
В итоге мы поиграли с темными цветами и оттенками, фактурами, отражениями, поработали над дизайном и сценариями освещения, уделили внимание функционалу, комфорту и уюту в интерьере.

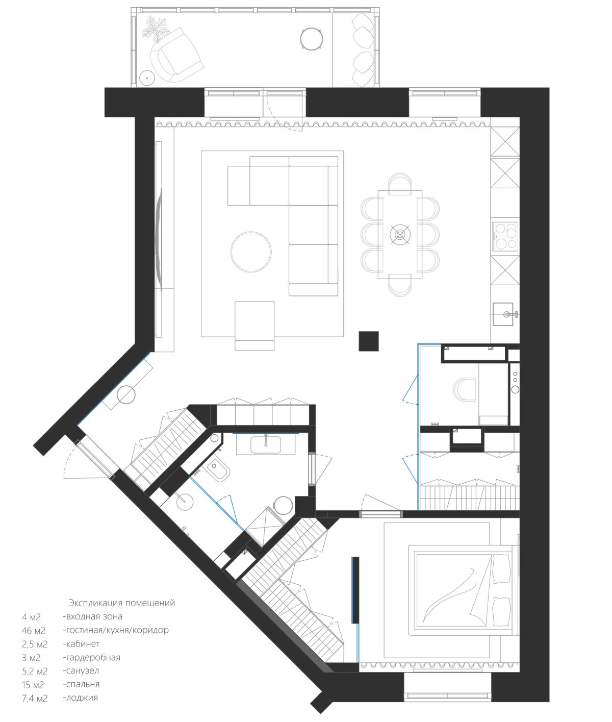
В основном помещении мы выбрали вариант с прямой кухней, чтобы усилить количество света в дальних частях коридора. И заодно добавили фишку в проект — кабинет за перегородкой со вставкой из тонированного стекла. Стеклянная перегородка захватывает и гардеробную комнату и у нас получился достаточно большой стеклянный блок, который облегчает пространство, усложняет и помогает свету проникать в самые удаленные части.

Приятного просмотра.

"DARK EMOTION"
Кустова Олеся Юрьевна

Представляю вам интерьер для молодого мужчины 25 лет.

При выборе референсов для концепции будущего интерьера клиента зацепил именно темный вариант.
В итоге мы поиграли с темными цветами и оттенками, фактурами, отражениями, поработали над дизайном и сценариями освещения, уделили внимание функционалу, комфорту и уюту в интерьере.

В основном помещении мы выбрали вариант с прямой кухней, чтобы усилить количество света в дальних частях коридора. И заодно добавили фишку в проект — кабинет за перегородкой со вставкой из тонированного стекла. Стеклянная перегородка захватывает и гардеробную комнату и у нас получился достаточно большой стеклянный блок, который облегчает пространство, усложняет и помогает свету проникать в самые удаленные части.

Приятного просмотра.

Церемония награждения — 14 мая 2026 года!