"CAMPARI"
Dizzo Design (Антон По, Яна Мазуркевич)!

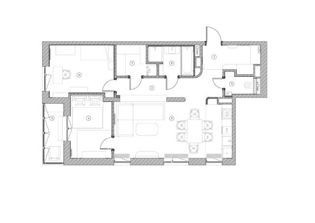
Легкий и игривый интерьер, вдохновленный Лазурным берегом и настоящим французским «joie de vivre». Элегантность и Чистота – вот он основной запрос, пришедший со стороны заказчиков (молодая семья с ребенком школьного возраста). Интерьер, который вобрал в себя все очарование и живописность французского побережья, с его мягким светом, морскими пейзажами и расслабленной атмосферой, характерной для Лазурного Берега.

Цветовая палитра интерьера, вдохновленного французским побережьем, создает атмосферу легкости и умиротворенности, как утренний бриз или закат на побережье Лазурного Берега. Теплые песочные оттенки в сочетании с прохладными голубыми и бирюзовыми тонами, яркие акценты терракотового цвета и натуральные материалы создают пространство, в котором хочется отдыхать и наслаждаться каждым моментом.

Этот интерьер предлагает идеальное сочетание элегантности, уюта и свежести природы. А выбранные оттенки привносят в пространство ощущение легкости и изысканной простоты, как если бы каждый день здесь был полон солнечного света и морского бриза.

В качестве акцентов для интерьера были выбраны теплые оранжевые и терракотовые оттенки, которые вдохновлены цветами заката и древних кирпичных стен приморских деревушек. Эти глубокие цвета вносят свою нотку тепла и глубины, подчеркивая уют и привнесенное французское очарование. Добавление теплых акцентов в виде древесных текстур и мягких пастельных тонов создают гармонию и в очередной раз подчеркивают элегантность и современность данного интерьера. Так, для усиления средиземноморского ощущения, в интерьер были введены текстуры, напоминающие о природном богатстве и атмосфере юга Франции. Деревянные элементы в теплых светлых оттенках и керамические плитки с контрастной фугой на швах в ванной комнате, добавляют текстурное разнообразие и создают ощущение природной гармонии.

Много мебели в этом проекте было изготовлено под заказ по нашим эскизам, остальная часть – бренды белорусских и европейских производителей.

"CAMPARI"
Dizzo Design (Антон По, Яна Мазуркевич)

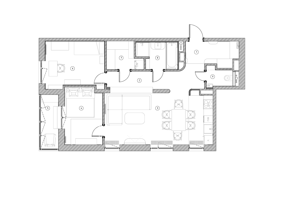
Легкий и игривый интерьер, вдохновленный Лазурным берегом и настоящим французским «joie de vivre». Элегантность и Чистота – вот он основной запрос, пришедший со стороны заказчиков (молодая семья с ребенком школьного возраста). Интерьер, который вобрал в себя все очарование и живописность французского побережья, с его мягким светом, морскими пейзажами и расслабленной атмосферой, характерной для Лазурного Берега.

Цветовая палитра интерьера, вдохновленного французским побережьем, создает атмосферу легкости и умиротворенности, как утренний бриз или закат на побережье Лазурного Берега. Теплые песочные оттенки в сочетании с прохладными голубыми и бирюзовыми тонами, яркие акценты терракотового цвета и натуральные материалы создают пространство, в котором хочется отдыхать и наслаждаться каждым моментом.

Этот интерьер предлагает идеальное сочетание элегантности, уюта и свежести природы. А выбранные оттенки привносят в пространство ощущение легкости и изысканной простоты, как если бы каждый день здесь был полон солнечного света и морского бриза.

В качестве акцентов для интерьера были выбраны теплые оранжевые и терракотовые оттенки, которые вдохновлены цветами заката и древних кирпичных стен приморских деревушек. Эти глубокие цвета вносят свою нотку тепла и глубины, подчеркивая уют и привнесенное французское очарование. Добавление теплых акцентов в виде древесных текстур и мягких пастельных тонов создают гармонию и в очередной раз подчеркивают элегантность и современность данного интерьера. Так, для усиления средиземноморского ощущения, в интерьер были введены текстуры, напоминающие о природном богатстве и атмосфере юга Франции. Деревянные элементы в теплых светлых оттенках и керамические плитки с контрастной фугой на швах в ванной комнате, добавляют текстурное разнообразие и создают ощущение природной гармонии.

Много мебели в этом проекте было изготовлено под заказ по нашим эскизам, остальная часть – бренды белорусских и европейских производителей.

Церемония награждения — 14 мая 2026 года!