"Лофт и Арт"
Каллаева Аминат Сулеймангаджиевна, Гусейнова Асият Исуповна!

Коммерческое пространство было разработано для транспортной компании.

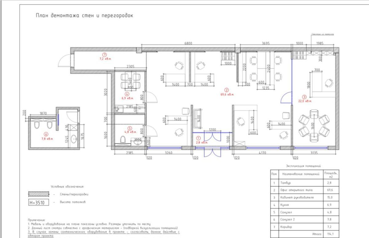
Нашей студии была предоставлена свободная планировка, не было ни одной стены.

Офис находится на 1 этаже, со своим отдельным входом и входом через бизнес центр. Основная задача была поставлена спланировать кухню, свой санузел, зонировать open space для сотрудников, и создать отдельный кабинет руководителя «чтобы в нем чувствовался статус и спокойствие» Все панно созданы по индивидуальному эскизу скульптора и являются уникальными. Настенное металлическое панно во входной зоне, также создано по эскизу в соаторстве с мастером по металлу – идеей было отразить железнодорожные перевозки в необычной стилистике.

Картины в кабинете руководителя были отрисованы на заказ художниками-архитекторами в стилистике Артура Скижалли-Вейса. Самым важным в проекте и особым предметом гордости, безусловно стал триптих из гипсовых панно «SHE» — авторская работа скульптора Сакена Салкенова в футуристической тематике. Панно создавались непосредственно на обьекте и скульптор 20 дней практически жил в нем. При разработке металлического панно как отражения железнодорожных перевозок.

Мастер увидел, что в элементах, которые мы с ним решили использовать, заложены три буквы «А» — а это первая буква имени руководителя компании, так что можно сказать, такой кастомизированный предмет декора получился, ну и вес самого панно – около 90 кг и его монтаж вызвали определенные трудности.

"Лофт и Арт"
Каллаева Аминат Сулеймангаджиевна, Гусейнова Асият Исуповна

Коммерческое пространство было разработано для транспортной компании.

Нашей студии была предоставлена свободная планировка, не было ни одной стены.

Офис находится на 1 этаже, со своим отдельным входом и входом через бизнес центр. Основная задача была поставлена спланировать кухню, свой санузел, зонировать open space для сотрудников, и создать отдельный кабинет руководителя «чтобы в нем чувствовался статус и спокойствие» Все панно созданы по индивидуальному эскизу скульптора и являются уникальными. Настенное металлическое панно во входной зоне, также создано по эскизу в соаторстве с мастером по металлу – идеей было отразить железнодорожные перевозки в необычной стилистике.

Картины в кабинете руководителя были отрисованы на заказ художниками-архитекторами в стилистике Артура Скижалли-Вейса. Самым важным в проекте и особым предметом гордости, безусловно стал триптих из гипсовых панно «SHE» — авторская работа скульптора Сакена Салкенова в футуристической тематике. Панно создавались непосредственно на обьекте и скульптор 20 дней практически жил в нем. При разработке металлического панно как отражения железнодорожных перевозок.

Мастер увидел, что в элементах, которые мы с ним решили использовать, заложены три буквы «А» — а это первая буква имени руководителя компании, так что можно сказать, такой кастомизированный предмет декора получился, ну и вес самого панно – около 90 кг и его монтаж вызвали определенные трудности.

Церемония награждения — 14 мая 2026 года!