"Qazaq Altay"
Хох Яна Евгеньевна!

Проект четырёхэтажного офисного здания создан для геологической компании и вдохновлён природными ландшафтами Казахстана. Каждый этаж отражает один из национальных парков страны.

Этот этаж посвящён Казахстанскому Алтаю, передавая атмосферу экспедиций и исследований. Центральный элемент — мурал с горой Белуха, созданный с помощью искусственного интеллекта. Графичные панели с подсветкой символизируют горы на рассвете, а колонны с фактурой скал усиливают связь с природой.

Светлые оттенки интерьера напоминают заснеженные вершины, а тёмный потолок — отражение моренного озера в небе. Живая зелень добавляет ощущение весеннего предгорья.

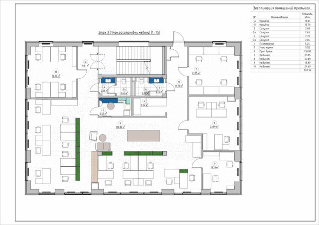
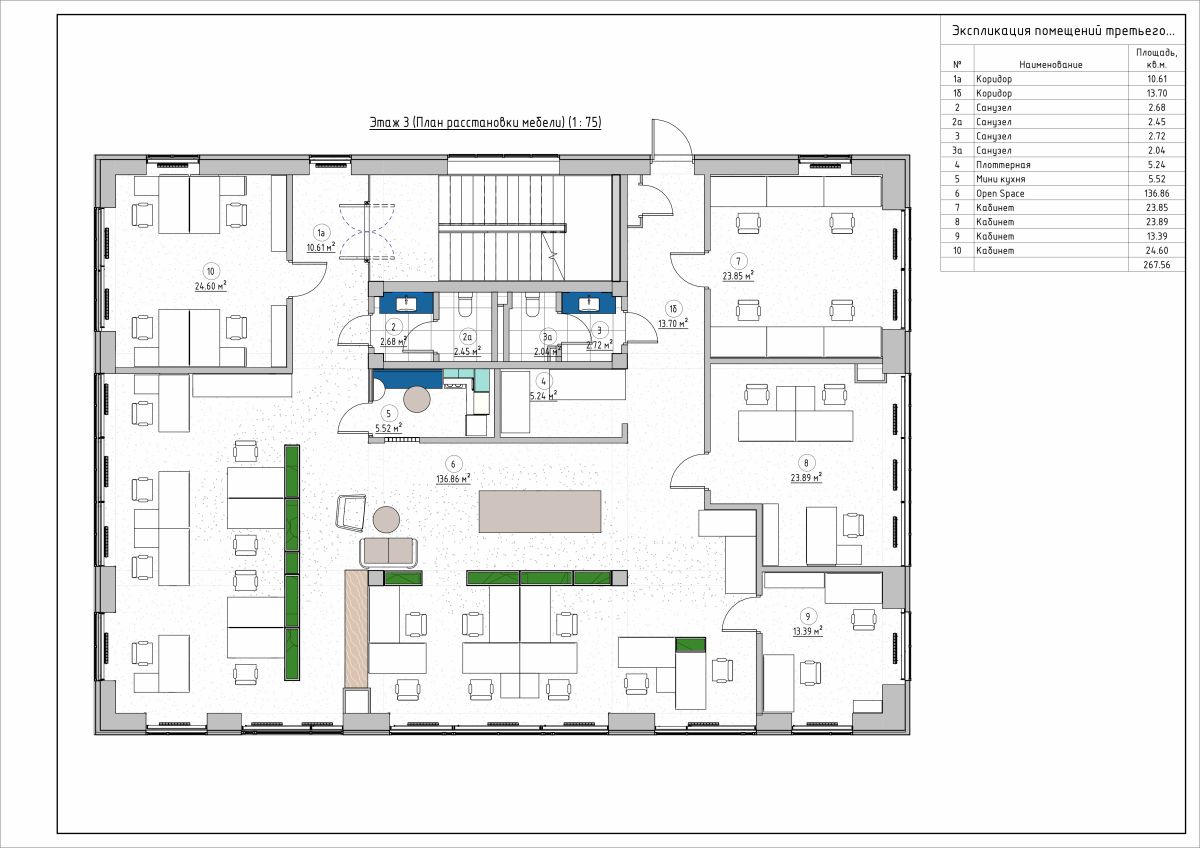
Команда убедила заказчика выбрать open space, но с учётом привычек сотрудников. Зонирование обеспечивают шкафы с местами хранения и зелёные растения, создающие уют и приватность.

Рабочие столы расставлены так, чтобы мониторы не были видны коллегам. Печатный центр полностью оснащён для удобной работы. Кухня, расположенная в глубине, получает естественное освещение через стену из стеклоблоков.

Центральное место занимает инженерный проектировочный стол, выделенный теплыми светильниками Palma от Antoni Arola с кашпо для растений. В зоне встреч появится журнальный стол из натурального камня, который компания привезёт из одной из своих экспедиций — символ связи сотрудников с природой и их работой.

Проект Qazaq Altay объединяет эстетику, функциональность и философию компании, создавая пространство, в котором воплощены ценности геологов: внимание к деталям, исследовательский дух и уважение к природе.

"Qazaq Altay"
Хох Яна Евгеньевна

Проект четырёхэтажного офисного здания создан для геологической компании и вдохновлён природными ландшафтами Казахстана. Каждый этаж отражает один из национальных парков страны.

Этот этаж посвящён Казахстанскому Алтаю, передавая атмосферу экспедиций и исследований. Центральный элемент — мурал с горой Белуха, созданный с помощью искусственного интеллекта. Графичные панели с подсветкой символизируют горы на рассвете, а колонны с фактурой скал усиливают связь с природой.

Светлые оттенки интерьера напоминают заснеженные вершины, а тёмный потолок — отражение моренного озера в небе. Живая зелень добавляет ощущение весеннего предгорья.

Команда убедила заказчика выбрать open space, но с учётом привычек сотрудников. Зонирование обеспечивают шкафы с местами хранения и зелёные растения, создающие уют и приватность.

Рабочие столы расставлены так, чтобы мониторы не были видны коллегам. Печатный центр полностью оснащён для удобной работы. Кухня, расположенная в глубине, получает естественное освещение через стену из стеклоблоков.

Центральное место занимает инженерный проектировочный стол, выделенный теплыми светильниками Palma от Antoni Arola с кашпо для растений. В зоне встреч появится журнальный стол из натурального камня, который компания привезёт из одной из своих экспедиций — символ связи сотрудников с природой и их работой.

Проект Qazaq Altay объединяет эстетику, функциональность и философию компании, создавая пространство, в котором воплощены ценности геологов: внимание к деталям, исследовательский дух и уважение к природе.

Церемония награждения — 14 мая 2026 года!