"Весенний сад"
Султанова Зарина!

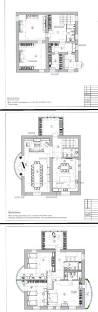
Частный трехэтажный дом 380 кВ для молодой семьи с 4 дочками. На первом этаже размещены гостевой туалет, большая кухня и зал-столовая. На втором этаже 2 детские, детский санузел, мастер спальня с мастер санузлом и кабинет.

В цокольном этаже расположены котельная, прачечная, санузел, кинотеатр и гостевая комната. Интерьер мы старались сделать классическим и уютным, чтобы он отражал традиционные ценности семьи. Чтобы дети росли в интерьере, где спокойно, уютно и безопасно. Атмосфера весны, праздника, легкости — вот чего мы добивались. Даже кадры съемки получились такими романтичными.

"Весенний сад"
Султанова Зарина

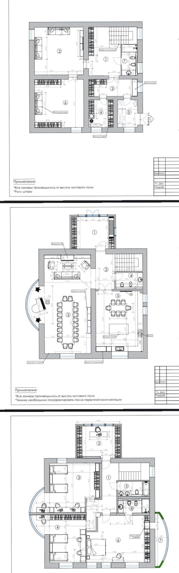
Частный трехэтажный дом 380 кВ для молодой семьи с 4 дочками. На первом этаже размещены гостевой туалет, большая кухня и зал-столовая. На втором этаже 2 детские, детский санузел, мастер спальня с мастер санузлом и кабинет.

В цокольном этаже расположены котельная, прачечная, санузел, кинотеатр и гостевая комната. Интерьер мы старались сделать классическим и уютным, чтобы он отражал традиционные ценности семьи. Чтобы дети росли в интерьере, где спокойно, уютно и безопасно. Атмосфера весны, праздника, легкости — вот чего мы добивались. Даже кадры съемки получились такими романтичными.

Церемония награждения — 14 мая 2026 года!