"Wooden House in Manoppello"
Vittorio Panicaldi!

Дом, созданный для молодой пары, желающей жить в гармонии с природой, но в то же время наслаждаться высоким уровнем комфорта и технологий, идеально вписывается в окружающую среду, создавая баланс между человеком, архитектурой и ландшафтом.

В основе проекта лежит использование натуральных материалов, таких как дерево, камень и речная галька, выбранных не только за их эстетичность, но и за их экологичность. Дерево является главным героем каждой комнаты, даря тепло и ощущение уюта. Камень и галька, отсылающие к чистоте природы, создают глубокую связь с ландшафтом Абруцци.

Большие окна не только обеспечивают идеальное освещение в течение всего дня, но и позволяют напрямую соприкоснуться с красотой окружающей дом природы. Каждый уголок дома спроектирован таким образом, чтобы максимально использовать свет, подчеркивая чистые, современные геометрические формы интерьера.
Открытое пространство на первом этаже обеспечивает ощущение свободы и визуально связывается с внешним миром на каждом углу, усиливая единение с природой.

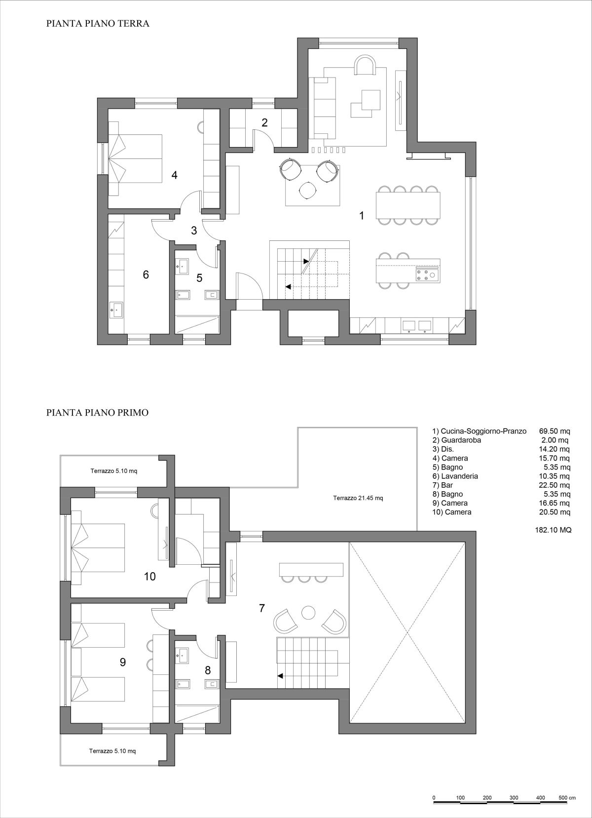
На первом этаже многофункциональное помещение включает в себя гостевую комнату, прачечную и служебный санузел, сохраняя при этом идеальную эстетическую целостность. Деревянная лестница, отличительный элемент дизайна, появляется из белого галечного пола и ведет на второй этаж, где зона отдыха с баром открывает вид на открытое пространство и окружающий ландшафт.

Второй этаж отведен под приватные помещения. Главная спальня, детская комната и главная ванная комната задуманы как места для уединения и благополучия. Каждая комната оборудована частной террасой, которая позволяет в полном спокойствии отдыхать на свежем воздухе, наслаждаясь захватывающим видом на холмы Абруццо.

Интегрированные технологии обеспечивают оптимальное управление энергией, отоплением и безопасностью. Дом был спроектирован таким образом, чтобы инновации могли сосуществовать с традициями, предлагая превосходное качество жизни, уважая окружающую среду и улучшая благосостояние своих обитателей

"Wooden House in Manoppello"
Vittorio Panicaldi

Дом, созданный для молодой пары, желающей жить в гармонии с природой, но в то же время наслаждаться высоким уровнем комфорта и технологий, идеально вписывается в окружающую среду, создавая баланс между человеком, архитектурой и ландшафтом.

В основе проекта лежит использование натуральных материалов, таких как дерево, камень и речная галька, выбранных не только за их эстетичность, но и за их экологичность. Дерево является главным героем каждой комнаты, даря тепло и ощущение уюта. Камень и галька, отсылающие к чистоте природы, создают глубокую связь с ландшафтом Абруцци.

Большие окна не только обеспечивают идеальное освещение в течение всего дня, но и позволяют напрямую соприкоснуться с красотой окружающей дом природы. Каждый уголок дома спроектирован таким образом, чтобы максимально использовать свет, подчеркивая чистые, современные геометрические формы интерьера.
Открытое пространство на первом этаже обеспечивает ощущение свободы и визуально связывается с внешним миром на каждом углу, усиливая единение с природой.

На первом этаже многофункциональное помещение включает в себя гостевую комнату, прачечную и служебный санузел, сохраняя при этом идеальную эстетическую целостность. Деревянная лестница, отличительный элемент дизайна, появляется из белого галечного пола и ведет на второй этаж, где зона отдыха с баром открывает вид на открытое пространство и окружающий ландшафт.

Второй этаж отведен под приватные помещения. Главная спальня, детская комната и главная ванная комната задуманы как места для уединения и благополучия. Каждая комната оборудована частной террасой, которая позволяет в полном спокойствии отдыхать на свежем воздухе, наслаждаясь захватывающим видом на холмы Абруццо.

Интегрированные технологии обеспечивают оптимальное управление энергией, отоплением и безопасностью. Дом был спроектирован таким образом, чтобы инновации могли сосуществовать с традициями, предлагая превосходное качество жизни, уважая окружающую среду и улучшая благосостояние своих обитателей

Церемония награждения — 14 мая 2026 года!