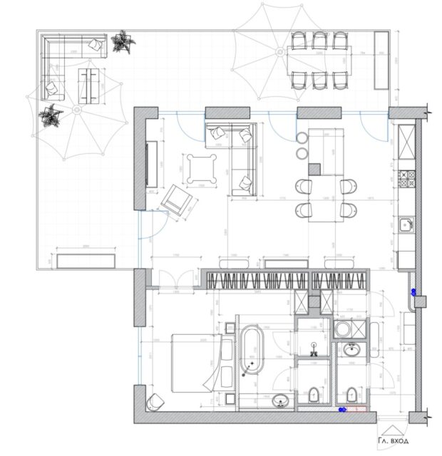
"Звуки Парижа"
Султанова Зарина!

Квартира для молодого человека с хорошим вкусом.

Кухня — зал студия, небольшая спальня с отдельностоящей ванной за кроватью. Интерьер задуман, как классический французский, с обильной лепниной на стенах и потолках, большим камином из красного мрамора, но с очень модным освещением и современной акцентной футуристичной мебелью.

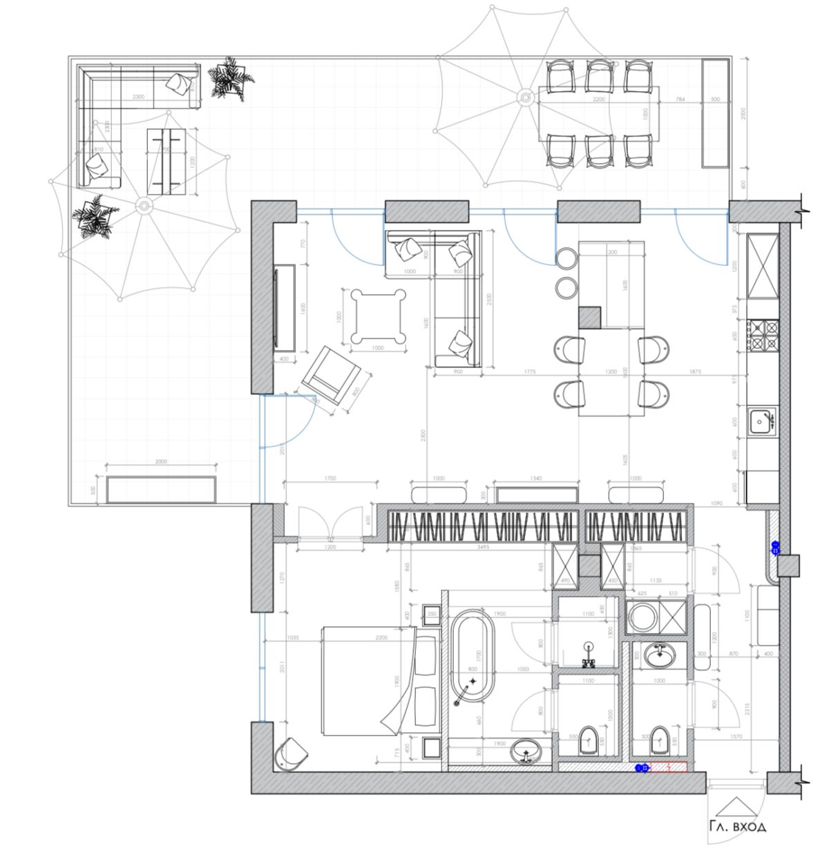
"Звуки Парижа"
Султанова Зарина

Квартира для молодого человека с хорошим вкусом.

Кухня — зал студия, небольшая спальня с отдельностоящей ванной за кроватью. Интерьер задуман, как классический французский, с обильной лепниной на стенах и потолках, большим камином из красного мрамора, но с очень модным освещением и современной акцентной футуристичной мебелью.

Церемония награждения — 14 мая 2026 года!