"DREAMERS"
Вакулич Ольга Анатольевна и Радик Елена Николаевна - BRAVO.bureau !

Проект «DREAMERS», студия площадью 47м2, г. Лонг-Бич, Калифорния, США. В настоящий момент проект находится на стадии реализации.
Для совместной работы заказчики предложили свой инвестиционный проект — студию для краткосрочной сдачи в аренду. Квартира расположена на первой береговой линии в самом сердце города в доме со 100-летней историей. Вся работа над проектом велась онлайн.
За основу концепции проекта была взята входная группа дома с его многолетней историей и завораживающие закаты над океаном.
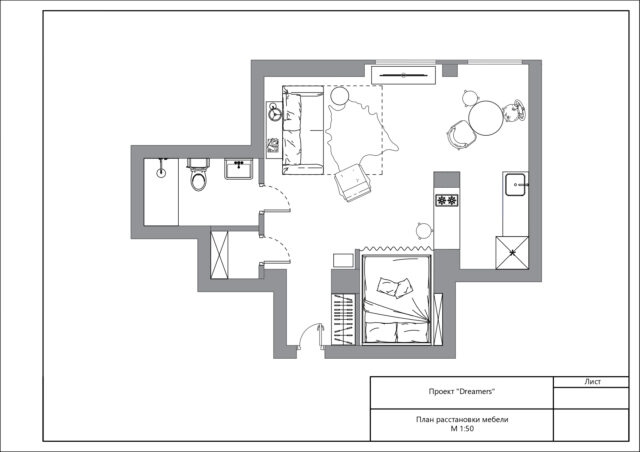
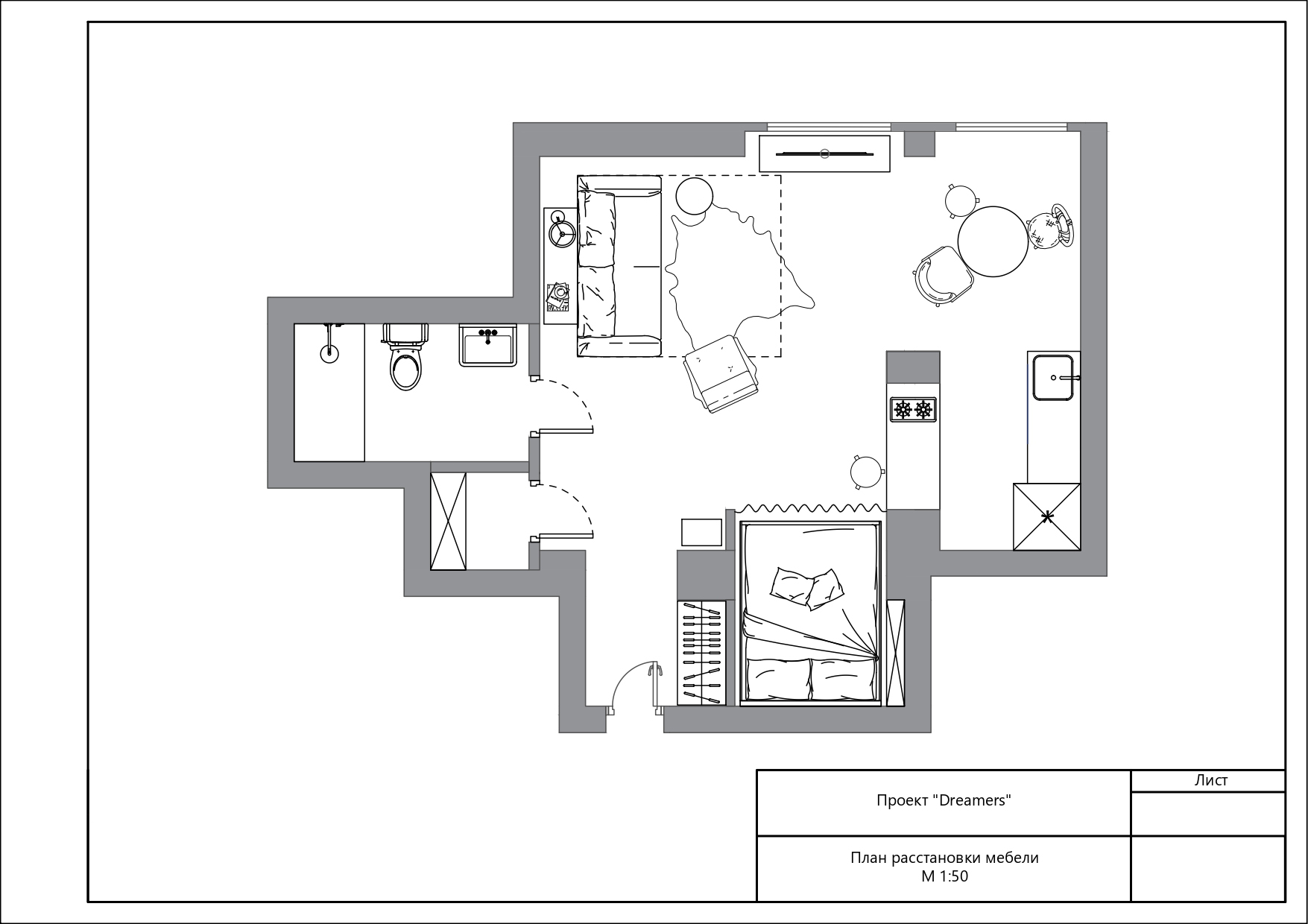
В планировочное решение были внесены незначительные изменения, которые позволили выделить зону прихожей с многофункциональным шкафом, организовать отдельную гардеробную и выделить нишу для изолированного спального места.
В зоне гостиной расположили раскладной диван и кресло, а многообразием фактур создали неповторимый уют.
Кровать расположили в нише, а ограниченное пространство визуально расширили обоями с экзотическим рисунком на потолке.
В санузле на стенах использовалась серая плитка métro в сочетании с обоями с уникальным узором. Пол оформили круглой мозаикой.
В обеденной зоне стулья разных форм и текстур дополняют стол из бетона. Основное внимание приковывают торшер и картина на стене за столом. Линейное расположение кухни позволило отделить зону гостиной барной стойкой.
Получился современный и функциональный интерьер, интегрированный в историческую стилистику дома.

"DREAMERS"
Вакулич Ольга Анатольевна и Радик Елена Николаевна - BRAVO.bureau

Проект «DREAMERS», студия площадью 47м2, г. Лонг-Бич, Калифорния, США. В настоящий момент проект находится на стадии реализации.
Для совместной работы заказчики предложили свой инвестиционный проект — студию для краткосрочной сдачи в аренду. Квартира расположена на первой береговой линии в самом сердце города в доме со 100-летней историей. Вся работа над проектом велась онлайн.
За основу концепции проекта была взята входная группа дома с его многолетней историей и завораживающие закаты над океаном.
В планировочное решение были внесены незначительные изменения, которые позволили выделить зону прихожей с многофункциональным шкафом, организовать отдельную гардеробную и выделить нишу для изолированного спального места.
В зоне гостиной расположили раскладной диван и кресло, а многообразием фактур создали неповторимый уют.
Кровать расположили в нише, а ограниченное пространство визуально расширили обоями с экзотическим рисунком на потолке.
В санузле на стенах использовалась серая плитка métro в сочетании с обоями с уникальным узором. Пол оформили круглой мозаикой.
В обеденной зоне стулья разных форм и текстур дополняют стол из бетона. Основное внимание приковывают торшер и картина на стене за столом. Линейное расположение кухни позволило отделить зону гостиной барной стойкой.
Получился современный и функциональный интерьер, интегрированный в историческую стилистику дома.

Церемония награждения — 14 мая 2026 года!