"INSPIRED BY TIME"
Мовчикова Юлия Валерьевна!

Проект одноэтажного частного загородного дома для семьи из трех человек. Несмотря на предпочтения большинством современных решений, скрытых систем и минимализма мне хотелось чтобы у дома была индивидуальность. Вдохновлённый временем (интерьерами из прошлого), формами и деталями, личными предпочтениями и попыткой сделать его долгоиграющим, не зависимым от трендов сегодняшнего дня.

В настоящее время проект находится на стадии реализации.

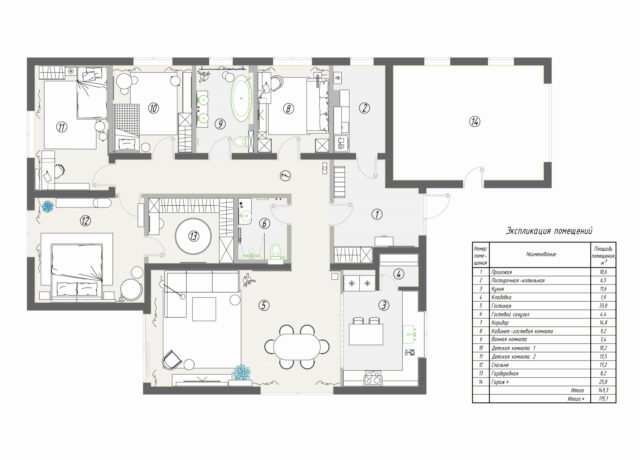
Планировка дома была продумана на этапе архитектурного проекта, вопросы связанные с перепланировкой были сведены к минимуму. Важно было разграничить зоны общего пользования и спальни, продумать удобство размещения гостей на длительный период. Так, из прихожей зоны первое что встречается входящему, гостевой санузел, гостевая комната и кухня с гостиной. Таким образом личные пространства (такие как ванная комната спальня и детские) никак не касаются временно проживающих в доме гостей.

Изначально кухня и гостиная были одним пространством, но в результате работы над проектом захотелось обозначить ее границы, так появилась перегородка с аркой, форма которой повторяется по всему дому. Наличие кладовки у кухни позволило оставить больше пространства и воздуха. Предусмотрены две детские комнаты, одна из которых для девочки 7 лет, вторая для будущего ребенка. Главная задача сделать детскую комнату для будущего ребенка универсальной (мальчик/девочка), продумать ее трансформацию в связи с взрослением.

Этот проект-мой автопортрет, мой внутренний мир и мое самовыражение. Проект дома для меня и моей семьи.

"INSPIRED BY TIME"
Мовчикова Юлия Валерьевна

Проект одноэтажного частного загородного дома для семьи из трех человек. Несмотря на предпочтения большинством современных решений, скрытых систем и минимализма мне хотелось чтобы у дома была индивидуальность. Вдохновлённый временем (интерьерами из прошлого), формами и деталями, личными предпочтениями и попыткой сделать его долгоиграющим, не зависимым от трендов сегодняшнего дня.

В настоящее время проект находится на стадии реализации.

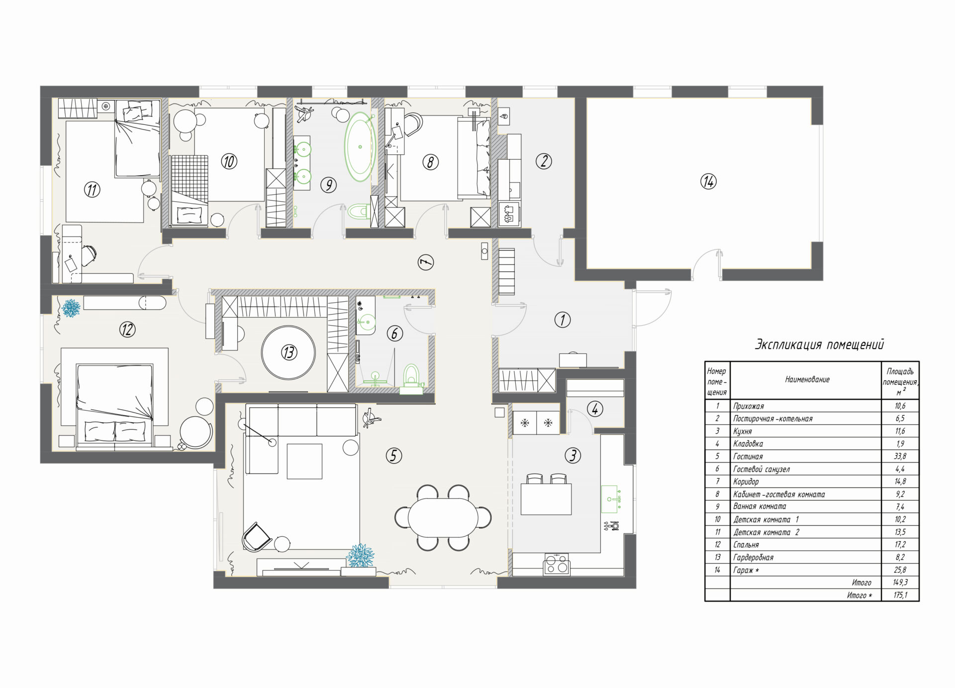
Планировка дома была продумана на этапе архитектурного проекта, вопросы связанные с перепланировкой были сведены к минимуму. Важно было разграничить зоны общего пользования и спальни, продумать удобство размещения гостей на длительный период. Так, из прихожей зоны первое что встречается входящему, гостевой санузел, гостевая комната и кухня с гостиной. Таким образом личные пространства (такие как ванная комната спальня и детские) никак не касаются временно проживающих в доме гостей.

Изначально кухня и гостиная были одним пространством, но в результате работы над проектом захотелось обозначить ее границы, так появилась перегородка с аркой, форма которой повторяется по всему дому. Наличие кладовки у кухни позволило оставить больше пространства и воздуха. Предусмотрены две детские комнаты, одна из которых для девочки 7 лет, вторая для будущего ребенка. Главная задача сделать детскую комнату для будущего ребенка универсальной (мальчик/девочка), продумать ее трансформацию в связи с взрослением.

Этот проект-мой автопортрет, мой внутренний мир и мое самовыражение. Проект дома для меня и моей семьи.

Церемония награждения — 14 мая 2026 года!