"BALANCE"
Острейко Ирина Дмитриевна!

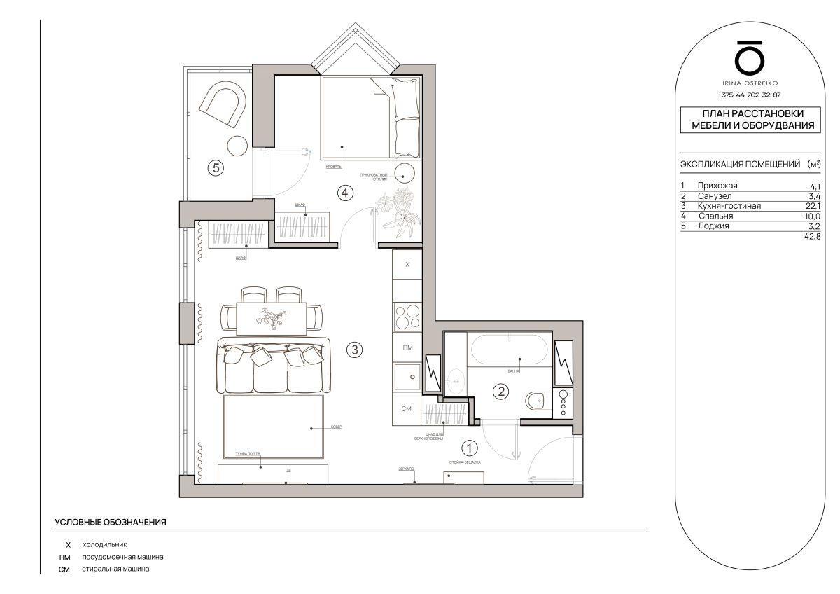
Запрос на создание интерьера пришел от молодой творческой девушки. С учетом небольшой площади жилья, удалось разместить всю необходимую мебель и технику.

Основными требованиями к стилистике будущего интерьера было: совместить лаконичность и уют, отразить прагматичный характер заказчицы, но и добавить мягкости.

Для воплощения пожеланий, было принято решение совместить такие интерьерные стилистики как «кинфолк» и «хюгге».

В качестве основного цвета интерьера были выбраны холодные оттенки белого и серого. Однако спальню и санузел реализовали в теплых, сливочных тонах, т.к. это главные места уединения и расслабления, которые будут укутывать своим теплом после насыщенного дня.

Основное внимание было отведено декору. Наличие хромированный деталей передает сильный и уверенный характер девушки. Мягкость и тепло интерьеру добавили с помощью текстиля, старых книг (которые перечитываются), дополнительного освещения (бра, торшер, настольные лампы).

Картины с женскими силуэтами, винтажный стеллаж, зеркальный журнальный столик ручной работы, старые книги, мягкий и воздушный текстиль — все это очень близко по духу нашей заказчице. Получилось создать чистоту пространства и аккуратную детализацию интерьера.

"BALANCE"
Острейко Ирина Дмитриевна

Запрос на создание интерьера пришел от молодой творческой девушки. С учетом небольшой площади жилья, удалось разместить всю необходимую мебель и технику.

Основными требованиями к стилистике будущего интерьера было: совместить лаконичность и уют, отразить прагматичный характер заказчицы, но и добавить мягкости.

Для воплощения пожеланий, было принято решение совместить такие интерьерные стилистики как «кинфолк» и «хюгге».

В качестве основного цвета интерьера были выбраны холодные оттенки белого и серого. Однако спальню и санузел реализовали в теплых, сливочных тонах, т.к. это главные места уединения и расслабления, которые будут укутывать своим теплом после насыщенного дня.

Основное внимание было отведено декору. Наличие хромированный деталей передает сильный и уверенный характер девушки. Мягкость и тепло интерьеру добавили с помощью текстиля, старых книг (которые перечитываются), дополнительного освещения (бра, торшер, настольные лампы).

Картины с женскими силуэтами, винтажный стеллаж, зеркальный журнальный столик ручной работы, старые книги, мягкий и воздушный текстиль — все это очень близко по духу нашей заказчице. Получилось создать чистоту пространства и аккуратную детализацию интерьера.

Церемония награждения — 14 мая 2026 года!