"Дом в горах"
Домиловский Денис Михайлович!

Данный проект был реализован в 2021г. Вилла расположена в верхней части Алматы, в горной местности. Площадью 850 кв.м, имеет 4 этажа, также просторный летний домик. Дом реализован в современной стилистике. Все материалы интерьера — натуральные (мрамор, шпон, металл). В данном проекте были реализованы много оригинальных архитектурных и конструктивных решений.

"Дом в горах"
Домиловский Денис Михайлович

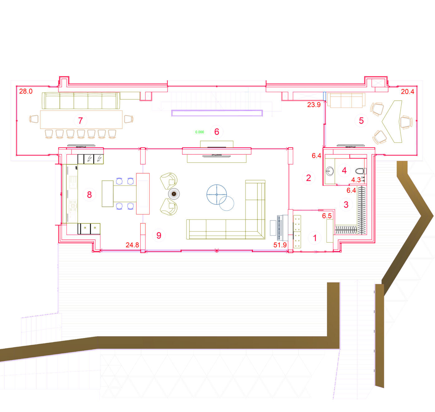
Данный проект был реализован в 2021г. Вилла расположена в верхней части Алматы, в горной местности. Площадью 850 кв.м, имеет 4 этажа, также просторный летний домик. Дом реализован в современной стилистике. Все материалы интерьера — натуральные (мрамор, шпон, металл). В данном проекте были реализованы много оригинальных архитектурных и конструктивных решений.

Церемония награждения — 14 мая 2026 года!