"ORANGE DOOR"
Шотт Полина Владимировна и Чеботкова Мария Ивановна !

ORANGE DOOR: смелый, дерзкий и уверенный.
Компания находится в бизнес-центре на окраине г. Минска.
Директору компании хотелось вырваться из серого общего офиса в свое индивидуальное и уютное помещение. Необходимо было в сжатые сроки создать комфортное пространство с авторскими деталями и атмосферой, которая бы отражала смелый, дерзкий и уверенный характер руководителя компании.
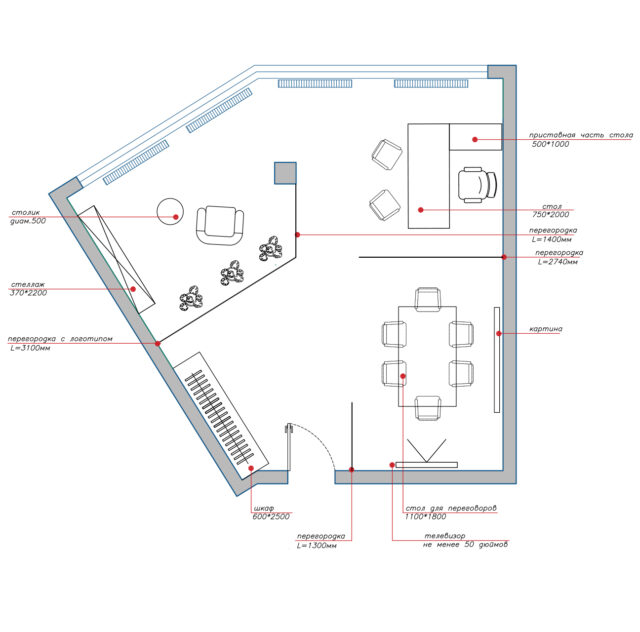
Нам досталось помещение сложной формы: большое количество углов и несущая колонна. С учетом пожеланий заказчика, мы предусмотрели входную группу с зоной хранения, переговорную, рабочую зону, а также зону отдыха. Помещение разделили на зоны стеклянными перегородками, благодаря которым свет из больших окон проникает в самые удаленные уголки данного пространства.
Фишкой проекта является оранжевая дверь, которую буквально за 30 минут до встречи с Заказчиком было решено предложить. Именно она стала отправной точкой проекта и была согласована сразу же. Не переступая порог, уже из серого общего коридора, дверь, цвета огня и солнца, словно “пульсирует” и говорит о том, что за этой дверью человек, который не боится быть счастливым.
Первое, что мы видим, зайдя в помещение – название компании с логотипом, которое мы разместили на матовой стеклянной перегородке, просвечивающей декоративные растения. Во входной зоне предусмотрели вместительный шкаф.
“Серьезная” переговорная не лишена юмора. Так на стене размещена картина “Табун”, символизирующая безумное движение. Что собственно и происходит в данной зоне ежедневно за вместительным столом.
Исходя из пожеланий Заказчика, в рабочей зоне разместили минимальный набор мебели, необходимый для комфортной работы. Стена выкрашена в любимый цвет Заказчика.
Зону отдыха предусмотрели максимально уютной, разместив в ней обволакивающее кресло и столик.
Обилие текстиля на окнах и ковровое покрытие добавили мягкости всему интерьеру.
Пространство получилось очень живым, уютным и в то же время дерзким, открытым и смелым, полностью отражая характер Заказчика.

"ORANGE DOOR"
Шотт Полина Владимировна и Чеботкова Мария Ивановна

ORANGE DOOR: смелый, дерзкий и уверенный.
Компания находится в бизнес-центре на окраине г. Минска.
Директору компании хотелось вырваться из серого общего офиса в свое индивидуальное и уютное помещение. Необходимо было в сжатые сроки создать комфортное пространство с авторскими деталями и атмосферой, которая бы отражала смелый, дерзкий и уверенный характер руководителя компании.
Нам досталось помещение сложной формы: большое количество углов и несущая колонна. С учетом пожеланий заказчика, мы предусмотрели входную группу с зоной хранения, переговорную, рабочую зону, а также зону отдыха. Помещение разделили на зоны стеклянными перегородками, благодаря которым свет из больших окон проникает в самые удаленные уголки данного пространства.
Фишкой проекта является оранжевая дверь, которую буквально за 30 минут до встречи с Заказчиком было решено предложить. Именно она стала отправной точкой проекта и была согласована сразу же. Не переступая порог, уже из серого общего коридора, дверь, цвета огня и солнца, словно “пульсирует” и говорит о том, что за этой дверью человек, который не боится быть счастливым.
Первое, что мы видим, зайдя в помещение – название компании с логотипом, которое мы разместили на матовой стеклянной перегородке, просвечивающей декоративные растения. Во входной зоне предусмотрели вместительный шкаф.
“Серьезная” переговорная не лишена юмора. Так на стене размещена картина “Табун”, символизирующая безумное движение. Что собственно и происходит в данной зоне ежедневно за вместительным столом.
Исходя из пожеланий Заказчика, в рабочей зоне разместили минимальный набор мебели, необходимый для комфортной работы. Стена выкрашена в любимый цвет Заказчика.
Зону отдыха предусмотрели максимально уютной, разместив в ней обволакивающее кресло и столик.
Обилие текстиля на окнах и ковровое покрытие добавили мягкости всему интерьеру.
Пространство получилось очень живым, уютным и в то же время дерзким, открытым и смелым, полностью отражая характер Заказчика.

Церемония награждения — 14 мая 2026 года!