"Современное прочтение сталинской классики"
Жуковская Юлия Михайловна!

Реализованный проект квартиры в сталинском доме в центре Витебска.
Хозяева приобрели квартиру уже в изрядно потрепанном состоянии, зато с хозяйской мебелью 70-х годов, часть которой в последствие планировалось оставить.
Квартира в классическом сталинском доме предназначена для сдачи в посуточную аренду.
Хотелось и после ремонта сохранить атмосферу и настроение места.

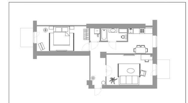
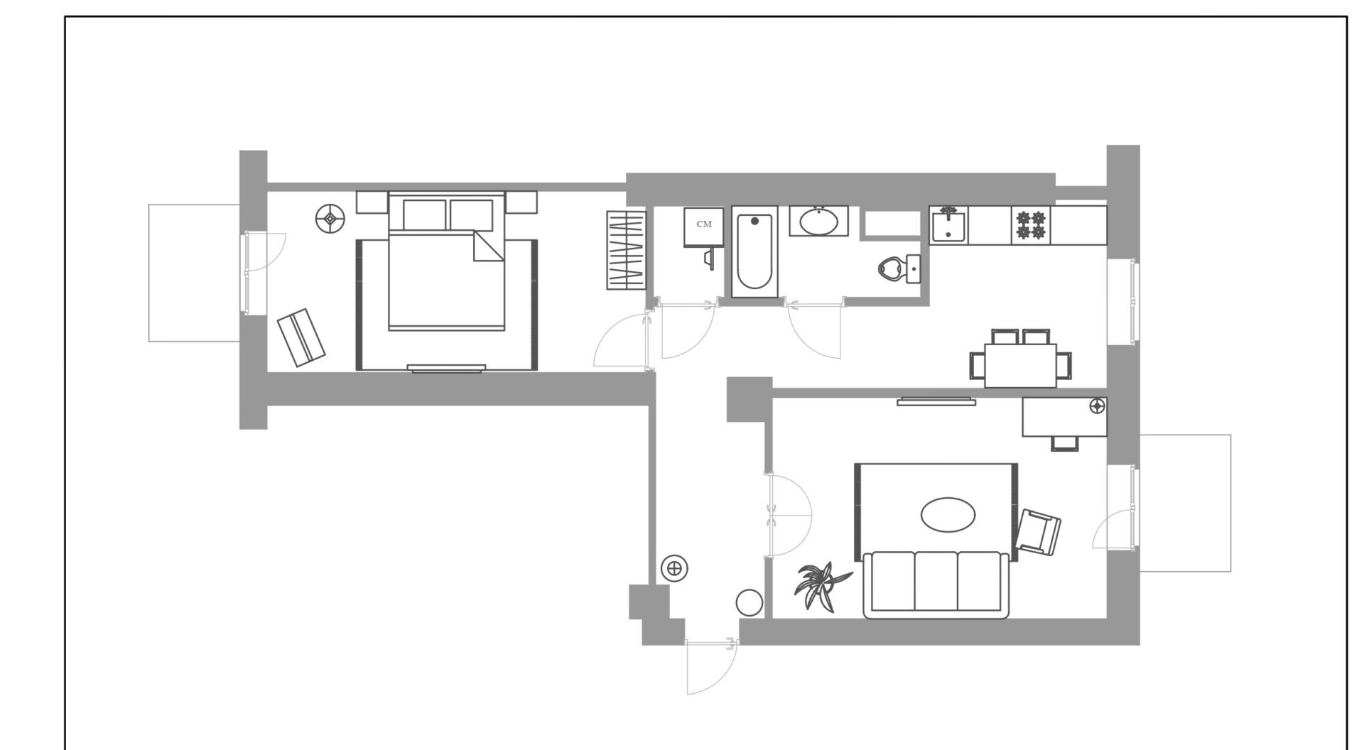
Бюджет проекта был не большим и к тому же квартира для посуточной аренды, поэтому от глобальной перепланировки заказчица отказалась и комнаты остались изолированными. Объединили только санузел, а на месте кладовой сделали постирочную. В коридоре демонтировали встроенные шкафы, расширив проход.
На кухне решили отказаться от верхних ящиков, в пользу открытых полок. Так кухня стала максимально воздушной.
Вся квартира имеет общую цветовую гамму, но в разных помещениях фон различный. Это позволяет воспринимать нам все пространство квартиры как единое целое, но при этом помогает создать в каждом конкретном помещении свою атмосферу.
В прихожей все стены выкрашены в насыщенный, зачерненный оттенок зелёного, что позволило придать этому помещению нотки театральности и драматичности.
В кухне и спальни этот оттенок является лишь акцентным.
В гостиной, напротив, фоном выступает бежево-песочный оттенок, который стал идеальным фоном для ярких акцентов в виде мебели (мягкий диван бутылочного цвета), декора и искусства.

А «бабушкин» стол, кресло и ковёр помогли создать тот самый отсыл к прошлому, которой был так важен для заказчицы.
Для отделки санузла выбрали плитку, которая ассоциируется с советскими коммуналками и раскладку сделали в духе того времени.
Мебель в квартире собрана из отреставрированных предметов и вещей сделанных на заказ.
Помимо старой мебели в интерьере использованы старые книги и частично советский хрусталь.
Благодаря цвету, искусству и  отреставрированной мебели мы получили яркий интерьер, комфортный для проживания.

"Современное прочтение сталинской классики"
Жуковская Юлия Михайловна

Реализованный проект квартиры в сталинском доме в центре Витебска.
Хозяева приобрели квартиру уже в изрядно потрепанном состоянии, зато с хозяйской мебелью 70-х годов, часть которой в последствие планировалось оставить.
Квартира в классическом сталинском доме предназначена для сдачи в посуточную аренду.
Хотелось и после ремонта сохранить атмосферу и настроение места.

Бюджет проекта был не большим и к тому же квартира для посуточной аренды, поэтому от глобальной перепланировки заказчица отказалась и комнаты остались изолированными. Объединили только санузел, а на месте кладовой сделали постирочную. В коридоре демонтировали встроенные шкафы, расширив проход.
На кухне решили отказаться от верхних ящиков, в пользу открытых полок. Так кухня стала максимально воздушной.
Вся квартира имеет общую цветовую гамму, но в разных помещениях фон различный. Это позволяет воспринимать нам все пространство квартиры как единое целое, но при этом помогает создать в каждом конкретном помещении свою атмосферу.
В прихожей все стены выкрашены в насыщенный, зачерненный оттенок зелёного, что позволило придать этому помещению нотки театральности и драматичности.
В кухне и спальни этот оттенок является лишь акцентным.
В гостиной, напротив, фоном выступает бежево-песочный оттенок, который стал идеальным фоном для ярких акцентов в виде мебели (мягкий диван бутылочного цвета), декора и искусства.

А «бабушкин» стол, кресло и ковёр помогли создать тот самый отсыл к прошлому, которой был так важен для заказчицы.
Для отделки санузла выбрали плитку, которая ассоциируется с советскими коммуналками и раскладку сделали в духе того времени.
Мебель в квартире собрана из отреставрированных предметов и вещей сделанных на заказ.
Помимо старой мебели в интерьере использованы старые книги и частично советский хрусталь.
Благодаря цвету, искусству и  отреставрированной мебели мы получили яркий интерьер, комфортный для проживания.

Церемония награждения — 14 мая 2026 года!